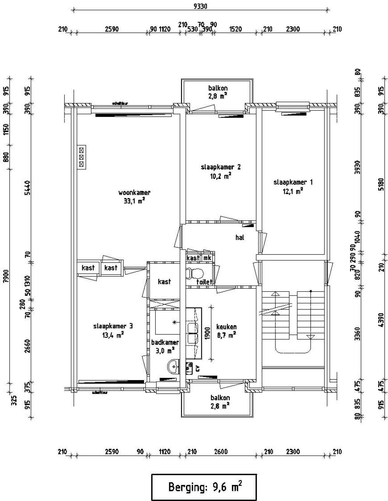
Deze woning ligt op de eerste verdieping van een pand aan de Schoenerstraat in Den Helder. De woning heeft een totale woonoppervlakte van 90,1 vierkante meter en beschikt over drie slaapkamers, een woonkamer, een keuken en een badkamer. De woning is gebouwd in 1963.
De woning heeft verschillende voorzieningen, waaronder een balkon, externe opslag, elektrisch koken en een cv-ketel met condenser. Daarnaast beschikt de woning over een intercomsysteem en een thermostatische douches Kraan. De woning is zeer geschikt voor wie op zoek is naar een ruime woonsituatie in Den Helder.
De indeling van de woning is als volgt: drie slaapkamers met afmetingen 12,10 m2, 10,20 m2 en 13,40 m2, een woonkamer van 33,10 m2, een keuken van 8,70 m2 en een badkamer van 3,00 m2. De externe opslag heeft een oppervlakte van 9,60 m2.
De woning is beschikbaar voor verhuur tegen een netto prijs van € 533,54 per maand, met bijkomende servicekosten van € 28,96, waardoor de bruto huur € 562,50 bedraagt. De verwachte verhuurdatum is 12 januari 2026.