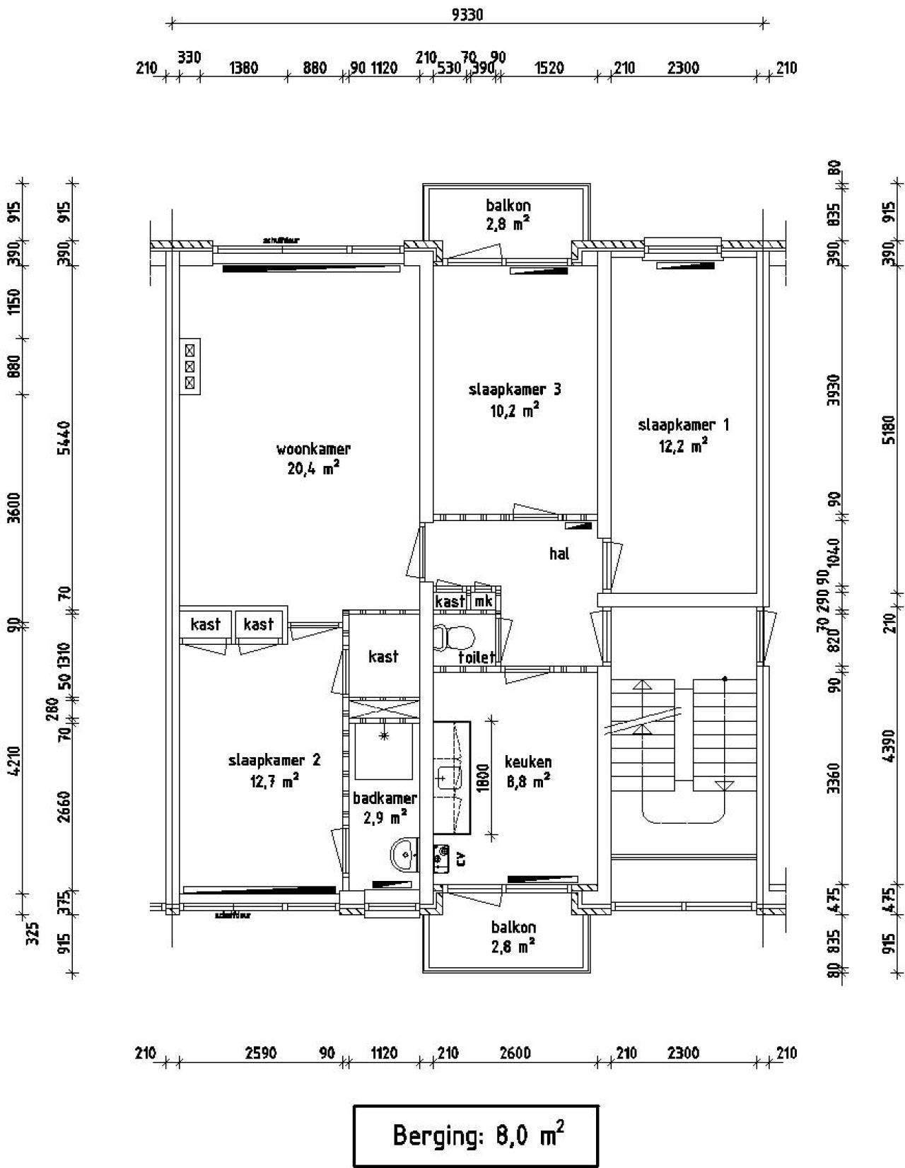
Deze woning bevindt zich op de tweede verdieping aan Schoenerstraat 256, Den Helder. De woning heeft een totale woonoppervlakte van 75,2 vierkante meter en beschikt over drie slaapkamers, een woonkamer, een keuken, een badkamer en externe opslag. Het appartement is gebouwd in 1963.
Het appartement is voorzien van moderne gemakken zoals elektrisch koken en een centrale verwarmingsketel. Extra kenmerken omvatten een balkon, een intercomsysteem en een thermostatische douchekraan. De externe opslag biedt extra ruimte voor bewoners.
De woning maakt deel uit van een wooncomplex en heeft een gunstige ligging in Den Helder. De buurt biedt diverse voorzieningen en diensten, waardoor het een fijne plek om te wonen is. Inwoners kunnen genieten van de omgeving en de nabijheid van lokale attracties.
Het appartement is beschikbaar voor verhuur tegen een concurrerende prijs. De huurgegevens omvatten een nett huurprijs van €609,88, servicekosten van €28,96 en een brutohuur van €638,84. Geïnteresseerde partijen dienen de huurvoorwaarden en het aanvraagproces te bekijken voordat ze solliceren.