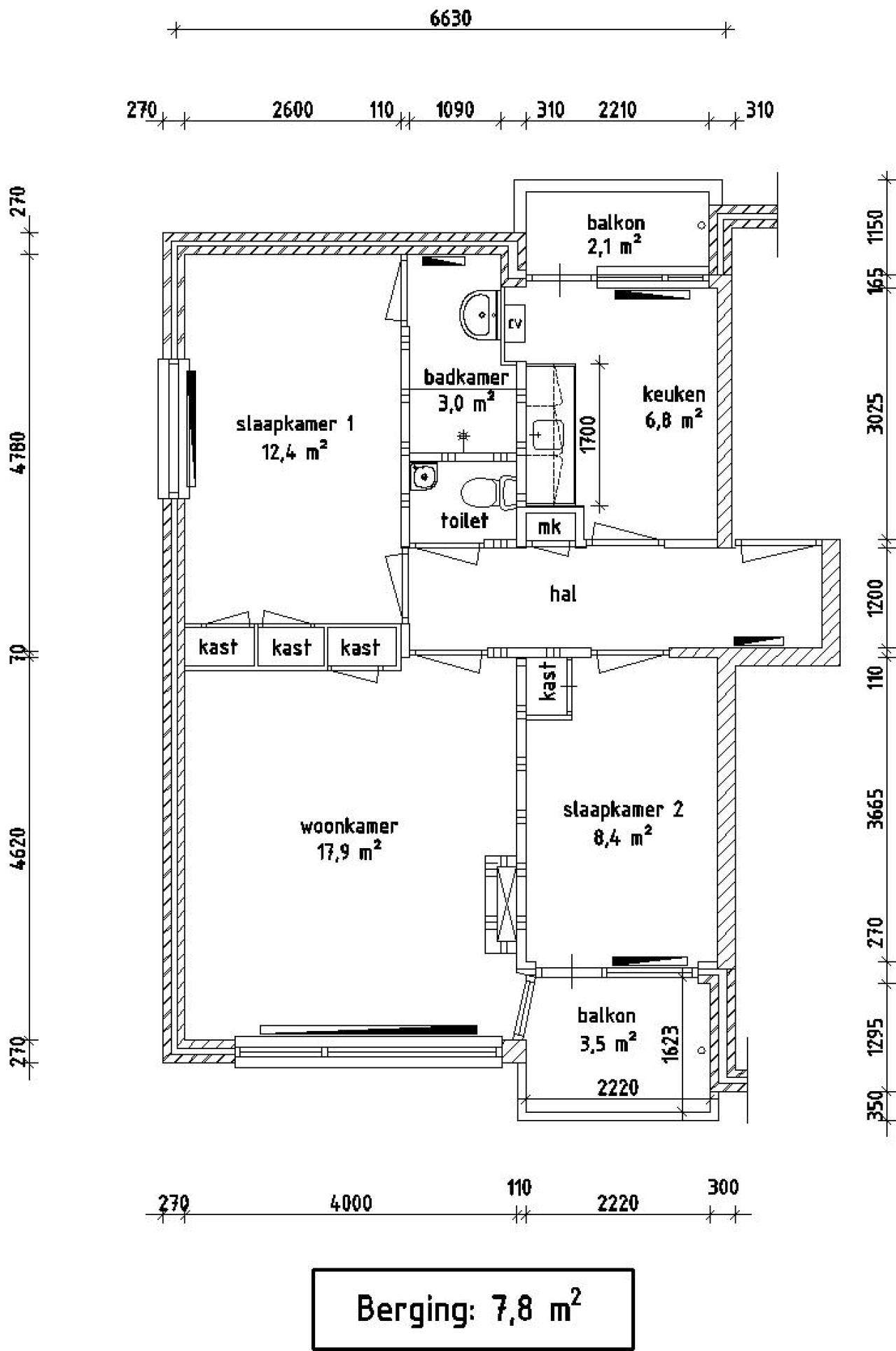
Deze woning bevindt zich aan Rijnstraat 21 in Den Helder. De totale woonoppervlakte bedraagt 56,3 vierkante meter en ligt op de 2e verdieping. Het beschikt over 2 slaapkamers, een woonkamer, een keuken en een badkamer. Het appartement is gebouwd in 1958.
Het appartement is uitgerust met moderne voorzieningen, waaronder elektrisch koken en een centrale verwarmingssysteem met een combi-ketel. Aanvullende kenmerken zijn onder andere een balkon, externe opslag en een video-deurbel. De douchekraan met thermostaatbediening verhoogt het comfort van de badkamer.
De indeling van het appartement is als volgt: twee slaapkamers van 12,40 en 8,40 vierkante meter, een woonkamer van 17,90 vierkante meter, een keuken van 6,80 vierkante meter en een badkamer van 3,00 vierkante meter. Er is ook externe opslagruimte van 7,80 vierkante meter.
De woning is beschikbaar voor verhuur tegen een brutohuur van € 620,86 per maand, met een netto huur van € 592,82 en servicekosten van € 28,04. De verwachte huurdatum is 22 december 2025.