Deze eengezinswoning, gelegen aan Pieter Janssoonstraat 2 in Den Helder, is te huur. De woning heeft een totale woonoppervlakte van 80,5 vierkante meter en beschikt over 4 slaapkamers, waardoor hij geschikt is voor grotere huishoudens. De woning werd gebouwd in 1966.
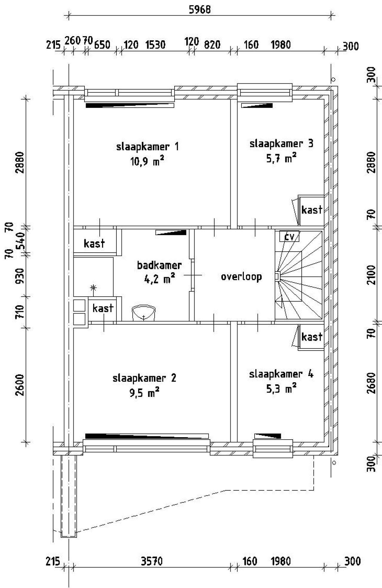
De indeling omvat een ruime woonkamer van 31 vierkante meter, vier slaapkamers variërend van 5,3 tot 10,9 vierkante meter, een keuken van 5,8 vierkante meter en een badkamer van 4,3 vierkante meter. Er is ook een externe opslagruimte van 8 vierkante meter. De woning beschikt over diverse voorzieningen, waaronder elektrisch koken, zonnepanelen en een CV-ketel.
Andere kenmerken van deze woning zijn onder meer een tuin en een vrijstaand toilet. De woning heeft ook een thermostatisch regelbare douchekraan, waardoor het comfort van de bewoners wordt verhoogd. Het is vermeldenswaard dat deze woning bij voorkeur geschikt is voor meerpersoonshuishoudens, met een minimum van 3 personen.
De huur voor deze woning bedraagt €739,74 per maand, met een netto huur van €731,93 en servicekosten van €7,81. Potentiële huurders dienen er rekening mee te houden dat zij als onderdeel van het huurproces een inkomstenverklaring van de Belastingdienst moeten overleggen.