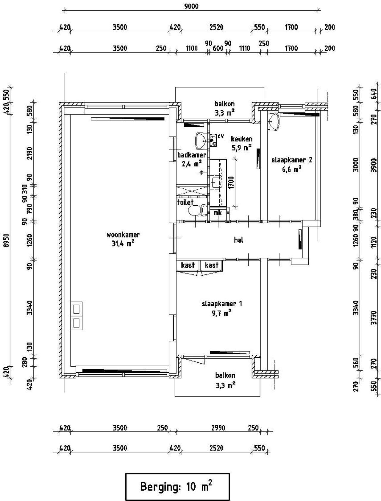
Dit appartement bevindt zich op de eerste verdieping van een gebouw aan de Marsdiepstraat in Den Helder. De woning heeft een totale woonoppervlakte van 66 m² en is gebouwd in 1959. Het beschikt over twee slaapkamers, een woonkamer, een keuken en een badkamer. Het appartement heeft ook een balkon en externe opslag.
De woning is voorzien van moderne gemakken, waaronder elektrisch koken en een combiketel voor verwarming. Aanvullende kenmerken zijn onder andere een intercomsysteem en een thermostaatdouchekraan. De woning wordt beheerd door een corporatie en heeft een netto huur van € 457,24 per maand, met servicekosten van € 32,59.
De indeling van de woning is als volgt: twee slaapkamers (9,70 m² en 6,60 m²), een woonkamer (31,40 m²), een keuken (5,90 m²) en een badkamer (2,40 m²). De externe opslag heeft een oppervlakte van 10,00 m². De woning wordt naar verwachting vanaf 12 januari 2026 verhuurd.
De locatie van de woning is gunstig, aangezien de stad Den Helder verschillende voorzieningen en diensten biedt. De woning is geschikt voor wie op zoek is naar een comfortabele en ruime leefruimte in een gewilde omgeving.