Deze gezellige eengezinswoning ligt aan Leliestraat 30 in Den Helder. De woning heeft een totale woonoppervlakte van 62,8 vierkante meter en werd gebouwd in 1916. Deze woning beschikt over drie slaapkamers, een woonkamer, keuken, badkamer en externe opslag.
De woning is uitgerust met moderne gemakken zoals elektrisch koken en een CV-combiketel. Verder beschikt het over een vrijstaand toilet en een thermostatische doucheskraan. De woning heeft ook een tuin, wat zorgt voor een aangename buitenruimte.
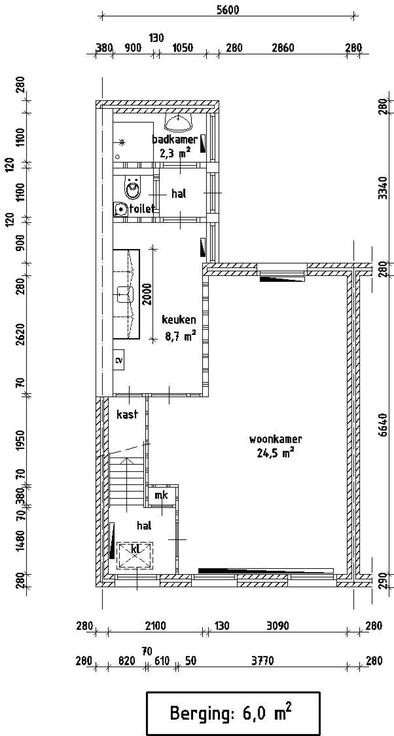
De indeling van de woning is als volgt: Slaapkamer 1 is 8,40 vierkante meter, Slaapkamer 2 is 7,30 vierkante meter en Slaapkamer 3 is 5,60 vierkante meter. De woonkamer is ruim met 24,50 vierkante meter en de keuken is 8,70 vierkante meter. De badkamer is 2,30 vierkante meter en er is externe opslag van 6,00 vierkante meter.
De woning is beschikbaar voor verhuur voor €627,25 per maand, met een netto huur van €619,44 en servicekosten van €7,81. De verwachte huurdatum is 23 januari 2026.