Deze woning bevindt zich aan Kanaalweg 310 in Den Helder en is te huur. De woning heeft een totale woonoppervlakte van 73,4 vierkante meter en beschikt over drie slaapkamers, een woonkamer, een keuken en een badkamer. De woning bevindt zich op de tweede verdieping en werd gebouwd in 1983.
De woning biedt verschillende voorzieningen, waaronder een balkon, externe opslag, elektrisch koken, en een thermostatisch bedienbare douchekraan. De verwarming geschiedt via een collectief systeem. De servicekosten bestaan uit een voorschot voor gas- en waterverbruik.
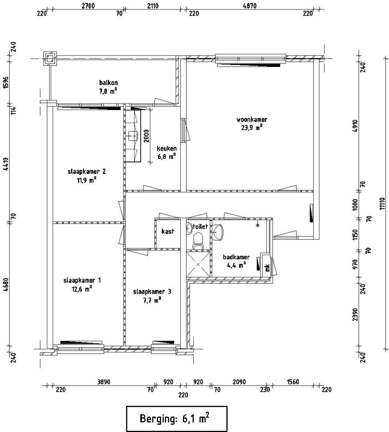
De indeling van het appartement bestaat uit drie slaapkamers met afmetingen 12,60 m2, 11,90 m2 en 7,70 m2, een woonkamer van 23,90 m2, een keuken van 6,80 m2 en een badkamer van 4,40 m2. De externe opslag meet 6,10 m2.
De huur is € 820,70 netto per maand, met servicekosten van € 221,85, waardoor de brutohuur € 1.042,55 per maand bedraagt. De woning wordt beheerd door een corporatie en is beschikbaar voor verhuur vanaf 23 december 2025.