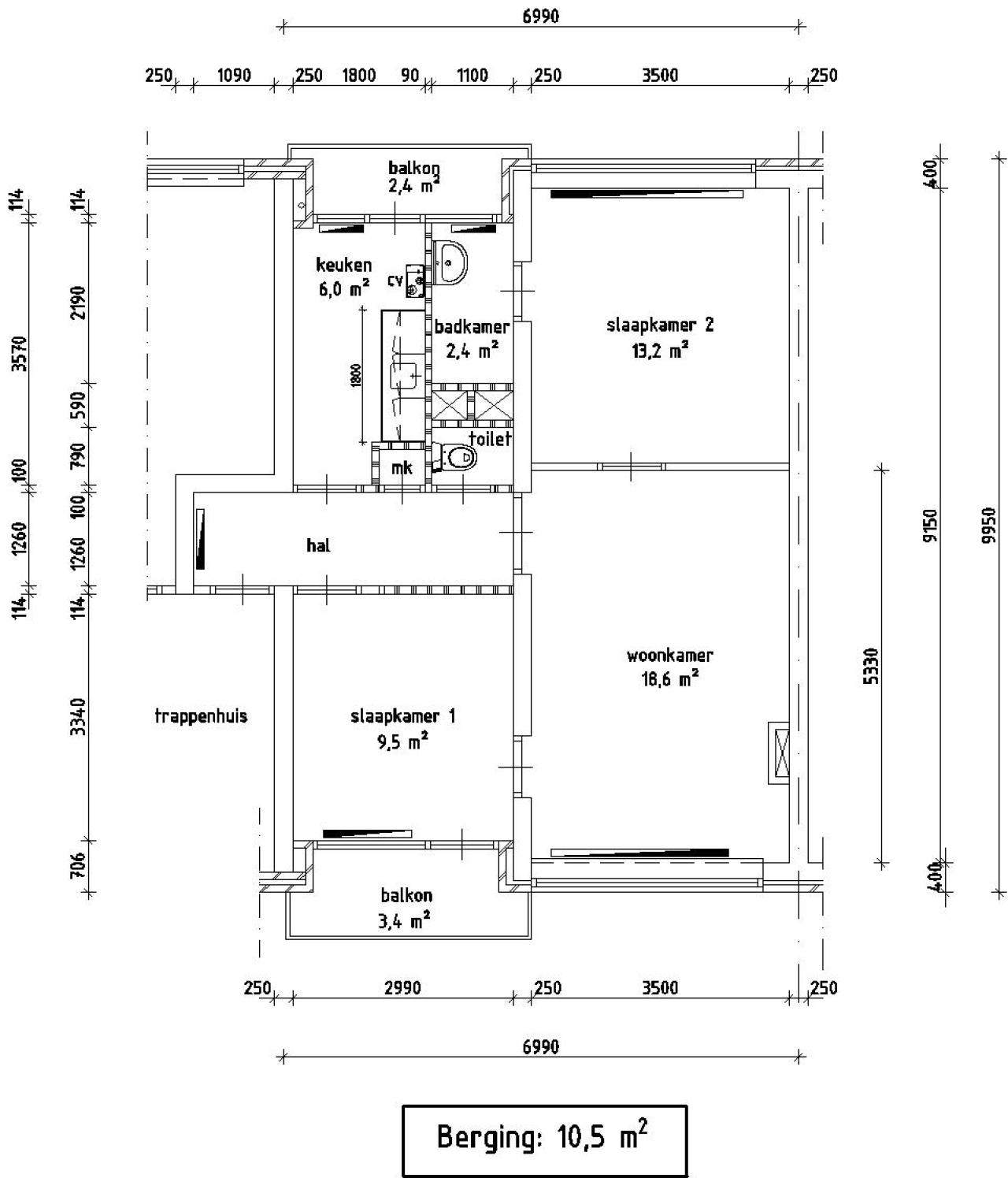
Dit appartement op de eerste verdieping is gelegen aan IJsselmeerstraat 19 in Den Helder. De woning heeft een totale woonoppervlakte van 60,2 vierkante meter en werd gebouwd in 1962. Het beschikt over twee slaapkamers, een woonkamer, een keuken en een badkamer. Het appartement heeft ook een balkon en externe opslagruimte.
Het appartement is voorzien van moderne gemakken, waaronder elektrisch koken en een combiketel voor verwarming. Daarnaast zijn er onder andere een intercomsysteem en een thermostatische douchekraan. De woning maakt deel uit van een beheerd complex en heeft specifieke leefregels waaraan huurders bij toewijzing moeten akkoord gaan.
De buurt biedt een aangename leefomgeving, en het appartement is gunstig gelegen in Den Helder. De indeling van de woning is functioneel, met de volgende afmetingen van de kamers: twee slaapkamers van 9,50 en 13,20 vierkante meter, een woonkamer van 18,60 vierkante meter, een keuken van 6,00 vierkante meter en een badkamer van 2,40 vierkante meter. De externe opslagruimte bedraagt 10,50 vierkante meter.
De woning is ook uitgerust met zonnepanelen, wat het een energiezuinige keuze maakt. De huur bedraagt €562,97 per maand, inclusief servicekosten. De toewijzingsmethode is gebaseerd op het 'zoekrecht' en de verwachte huurdatum is 13 januari 2026.