Dit appartement bevindt zich aan Hendrik Baskeweg 271 in Den Helder. Het is een appartement op de 6e verdieping met een lift, met een totale woonoppervlakte van 76,2 vierkante meter. Het appartement heeft 2 slaapkamers, een woonkamer, een keuken en een badkamer. De woning werd gebouwd in 1972.
Het appartement is goed uitgerust met diverse voorzieningen, waaronder een balkon, externe opslag en elektrische kookvoorzieningen. De aanwezigheid van een lift maakt het gemakkelijk toegankelijk. Daarnaast is het apartment uitgerust met moderne gemakken zoals een thermostatische douchekraan en een video-deurbel.
De woning is onderworpen aan bepaalde voorwaarden, waaronder een minimumleeftijd van 65 jaar. Potentiële huurders dienen een inkomstenverklaring te overleggen. De huur bedraagt € 774,19 per maand, inclusief servicekosten van € 42,26. De netthuur bedraagt € 731,93.
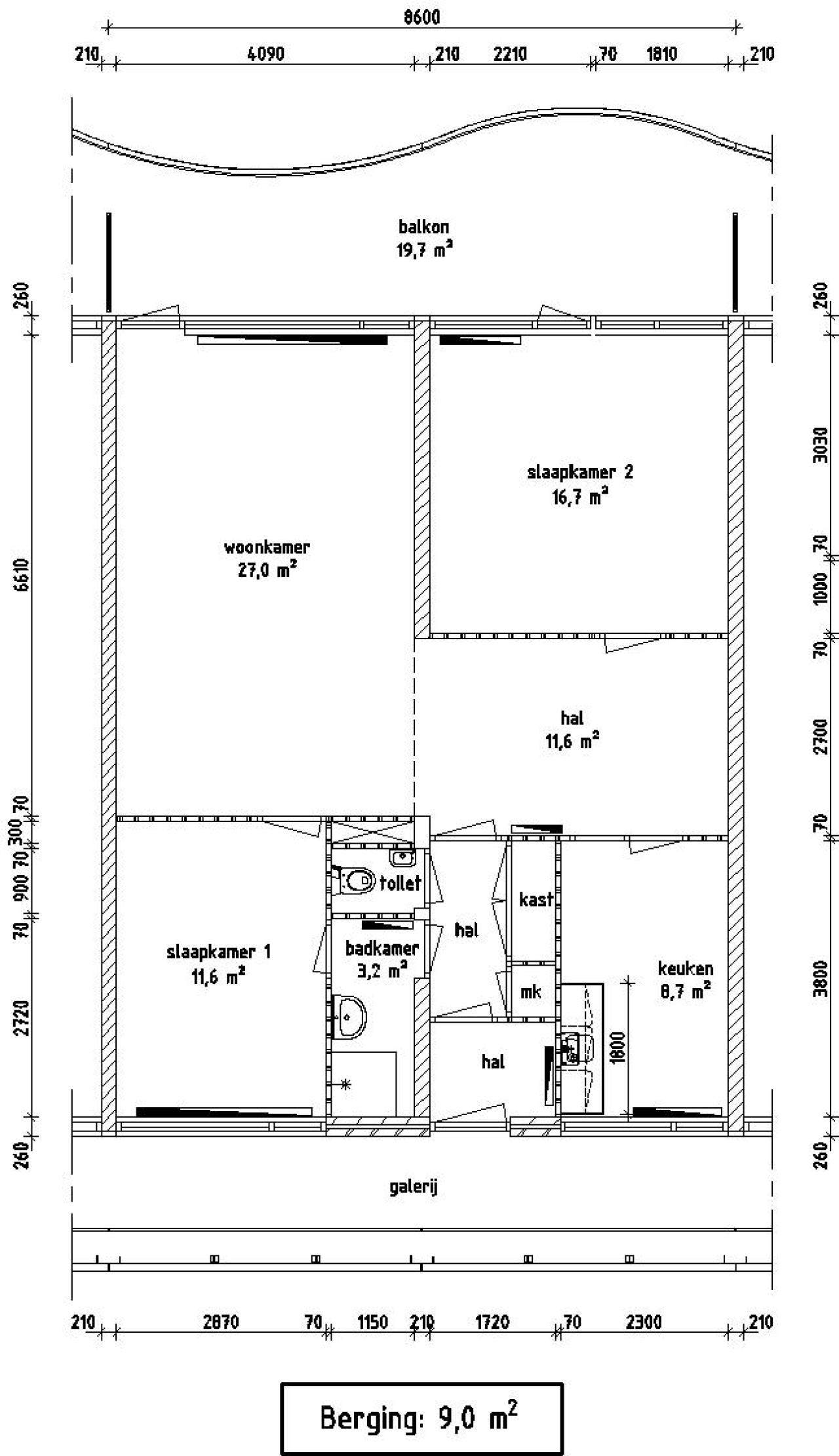
De indeling van het appartement is als volgt: twee slaapkamers van 11,60 en 16,70 vierkante meter, een woonkamer van 27,00 vierkante meter, een keuken van 8,70 vierkante meter en een badkamer van 3,20 vierkante meter. Er is ook een externe opslagruimte van 9,00 vierkante meter.