Dit begane grond appartement is gelegen aan de Gorterstraat 8 in Den Helder. De woning, gebouwd in 1977, biedt een totale woonoppervlakte van 66,3 vierkante meter. Het beschikt over twee slaapkamers, een woonkamer, een keuken en een badkamer. Het appartement is voorzien van elektrisch koken en heeft een cv-ketel voor centrale verwarming. Aanvullende kenmerken zijn onder andere een thermostaatgestuurde douchekraan en externe opslagruimte.
Het appartement maakt deel uit van de Sluisdijkbuurt-wijk, die op loopafstand ligt van het treinstation Den Helder, het busstation en de voorzieningen in het stadscentrum. De wijk bestaat uit een mix van vrijstaande huizen en appartementen en staat bekend om een hoog aandeel eenpersoonswoningen. Hoewel het gebied te maken heeft met enkele uitdagingen zoals jeugdcriminaliteit en drugsproblemen, werken lokale bewoners en autoriteiten samen om deze problemen aan te pakken en de leefbaarheid te verbeteren.
De woning wordt beheerd door een woningcorporatie en is beschikbaar voor verhuur voor €672,89 per maand, inclusief €7,81 aan servicekosten. Het verhuurproces omvat een bezichtiging, gevolgd door het indienen van vereiste documenten, en mogelijk een ontmoeting met het buurtteam van de woningcorporatie om de geschiktheid van de huurder voor de woning te beoordelen.
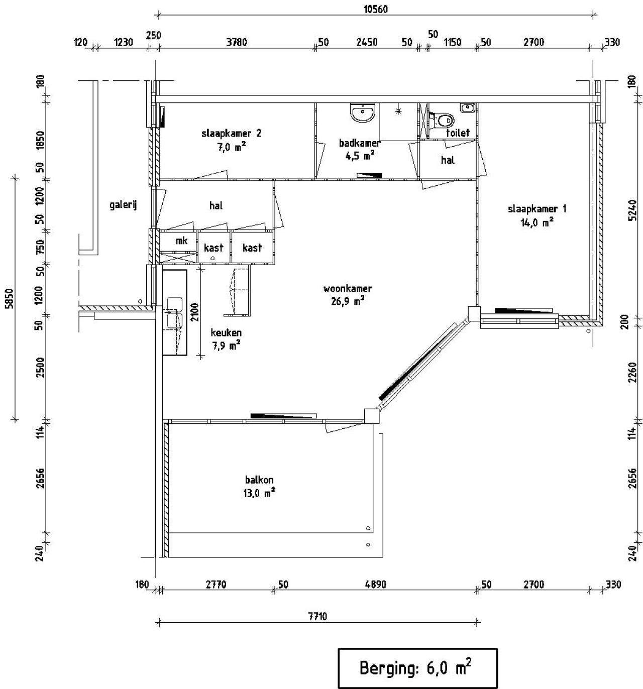
De indeling van het appartement is als volgt: twee slaapkamers (14,00 m2 en 7,00 m2), een woonkamer (26,90 m2), een keuken (7,90 m2), een badkamer (4,50 m2) en externe opslag (6,00 m2). De woning is niet geschikt voor koken op gas.