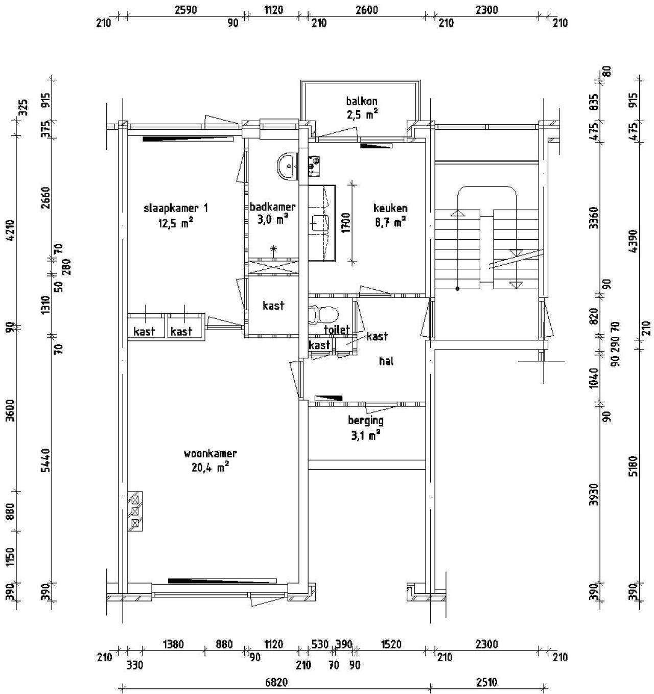
Dit appartement op de begane grond is gelegen aan de Fregatstraat 97 in Den Helder. De woning heeft een totale woonoppervlakte van 47,7 m2 en beschikt over 1 slaapkamer. Gebouwd in 1963, biedt het een compacte en efficiënte leefruimte. Het appartement is ontworpen voor maximaal 2 personen.
De indeling van het appartement omvat een slaapkamer van 12,50 m2, een woonkamer van 20,40 m2, een keuken van 8,70 m2 en een badkamer van 3,00 m2. Daarnaast is er interne bergruimte van 3,10 m2. De woning is voorzien van moderne voorzieningen zoals elektrisch koken en een thermostaatkraan voor de douche.
De huurprijs bedraagt € 359,17 per maand, inclusief € 330,21 netto huur en € 28,96 servicekosten. De woning is ook voorzien van een CV-combiketel voor verwarming. Andere opmerkelijke kenmerken zijn een intercomsysteem. Het appartement is zeer geschikt voor alleenstaanden of koppels die op zoek zijn naar een eenvoudige en praktische woonsituatie.
De buurt is goed bereikbaar en de locatie van de woning kan worden bekeken op Google Maps of Google Streetview voor een beter beeld van de omgeving. Over het algemeen biedt dit appartement een praktische en comfortabele woonoplossing in Den Helder.