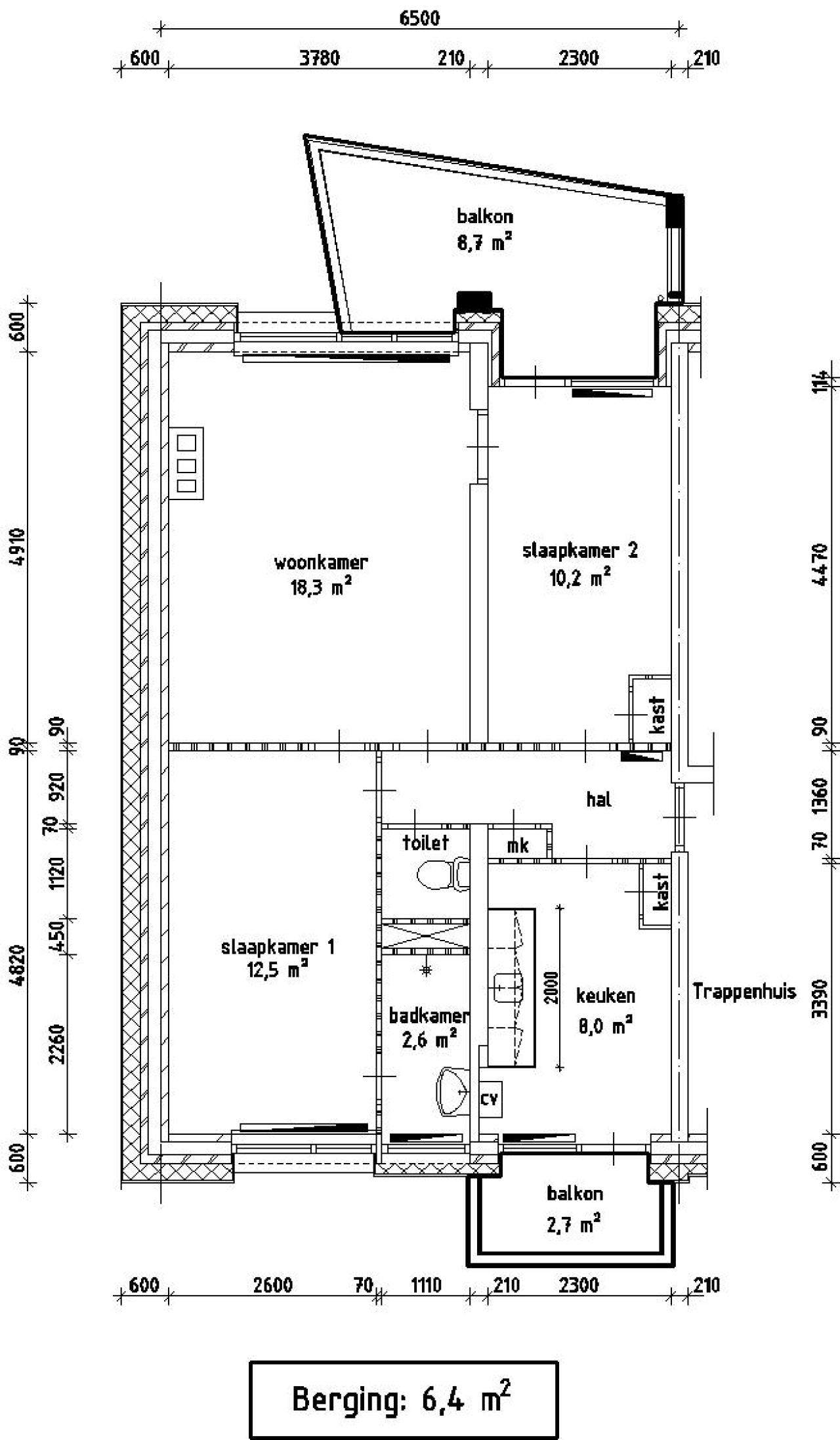
Dit appartement op de eerste verdieping is gelegen aan Duinroosstraat 353 in Den Helder. De woning heeft een totale woonoppervlakte van 58 vierkante meter en is gebouwd in 1962. Het beschikt over twee slaapkamers, een woonkamer, een keuken en een badkamer. Het appartement beschikt ook over een balkon en een externe opslagruimte.
Het appartement is goed uitgerust met diverse voorzieningen, waaronder elektrische kookfaciliteiten, zonnepanelen en een centraal verwarmingssysteem. De keuken is uitgerust met elektrische kookfaciliteiten, en de woning is voorzien van een thermostaatgestuurde douchekraan en een video-deurtelefoon.
De indeling van de woning is als volgt: twee slaapkamers van 12,50 en 10,20 vierkante meter, een woonkamer van 18,30 vierkante meter, een keuken van 8,00 vierkante meter en een badkamer van 2,60 vierkante meter. De externe opslagruimte is 6,40 vierkante meter.
Het appartement maakt deel uit van een complex en is te huur. De huur bedraagt € 668,51 per maand, inclusief servicekosten. De woning is geschikt voor wie op zoek is naar een ruime en goed uitgeruste woning in Den Helder.