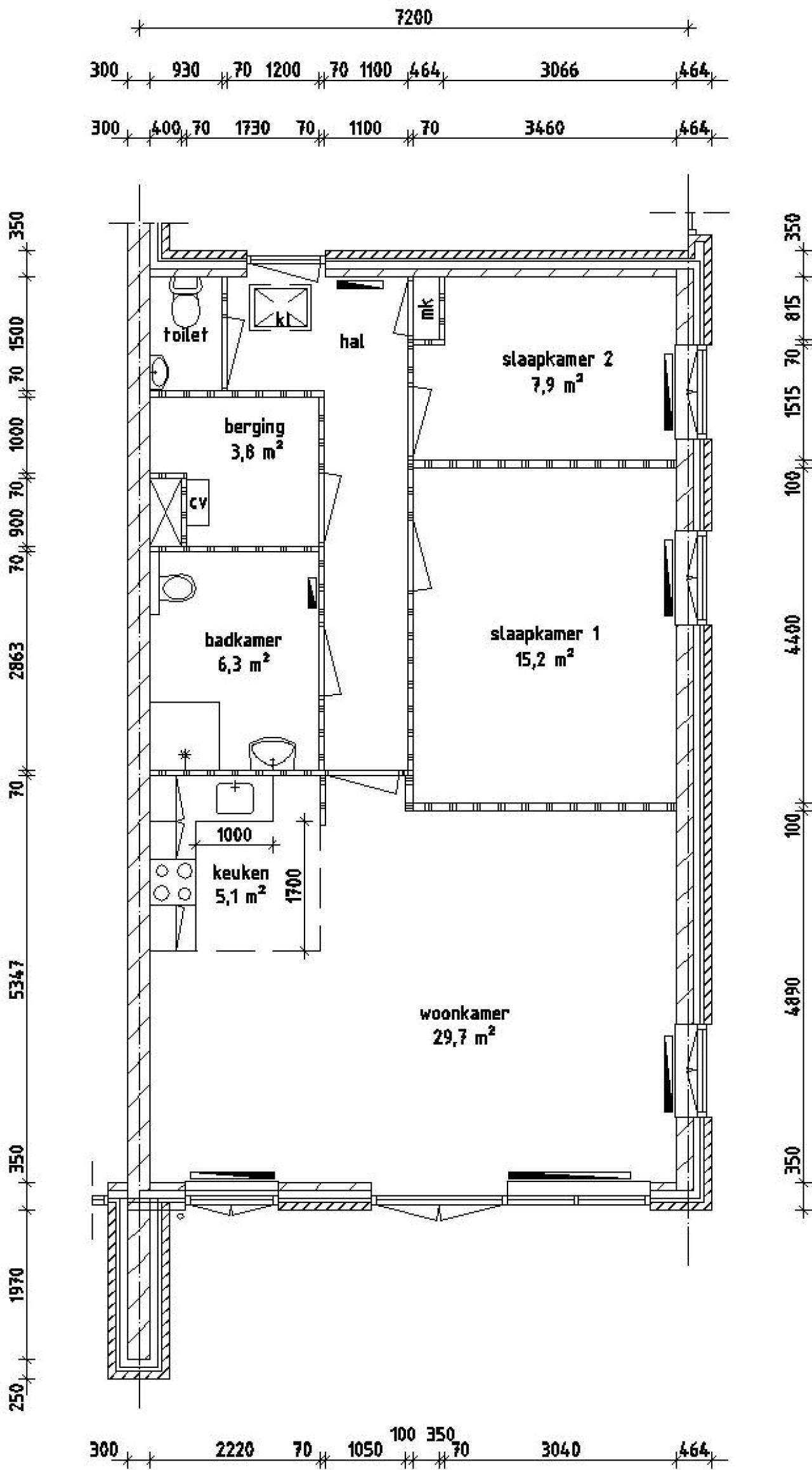
Dit begane grond appartement is gelegen aan de Adam Schuurmanstraat 7 in Den Helder. Het appartement beschikt over 2 slaapkamers en heeft een totale woonoppervlakte van 62,9 vierkante meter. Gebouwd in 2007, biedt het moderne voorzieningen en comfort.
Het appartement is ontworpen met oog voor toegankelijkheid, voorzien van een lift en toegang op de begane grond. Het beschikt over een open keuken en een tuin, wat zorgt voor een aangename woonomgeving. Extra voorzieningen zijn onder meer een berging, elektrische kookgelegenheid, zonnepanelen en een CV-combiketel.
De indeling van het appartement is goed verdeeld, met een woonkamer van 29,70 vierkante meter, twee slaapkamers van 15,20 en 7,90 vierkante meter, een badkamer van 6,30 vierkante meter en een berging van 3,80 vierkante meter. Het beschikt ook over extra's zoals een vrijstaande toilet, thermostaatkraan douche en een extra toilet in de badkamer.
De woning is ontworpen met senioren-vriendelijke kenmerken, is 'levensloopbestendig' en heeft een voorkeur voor huurders van 65 jaar en ouder. De huurprijs bedraagt € 925,85 per maand, met een kale huur van € 864,44 en servicekosten van € 61,41.