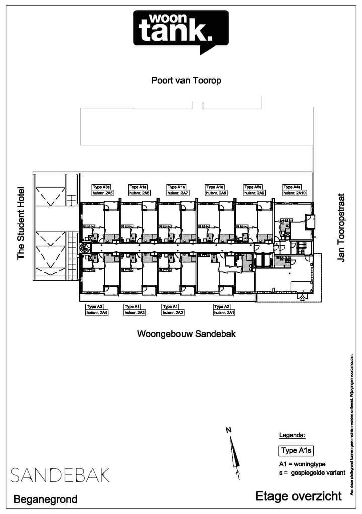
Een 2-kamer appartement van circa 49 m² is beschikbaar om te huur aan Van de Sande Bakhuijzenstraat 2-A7, 1061 AG Amsterdam. Het appartement bevindt zich op de verhoogde begane grond, 1,50 m boven het straatniveau, en beschikt over een groot terras van 42 m² grenzend aan het naastgelegen complex Poort van Toorop. Het appartement maakt deel uit van een galerijflat gebouwd in 2018.
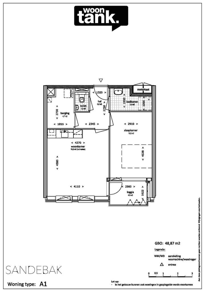
Het appartement beschikt over een woonkamer met een open keuken, één slaapkamer, een badkamer en een apart toilet. Het heeft ook een berging binnen het appartement. De totale woonoppervlakte is 49 m², met een extra 4 m² aan buitenruimte die bij het gebouw hoort. Het appartement is naar het noorden georiënteerd en heeft een inpandige loggia/serre.
De huurprijs bedraagt €1.355 per maand, met bijkomende servicekosten van €55 per maand. De woning is vanaf 1 januari 2026 beschikbaar voor verhuur. Het complex heeft 9 woonlagen en is voorzien van een lift en mechanische ventilatie. Het gebouw wordt verwarmd door stadsverwarming.
De buurt ligt nabij het Lucas/Andreasziekenhuis ziekenhuis. De indeling en plattegrond van het appartement zijn op verzoek beschikbaar en tonen de exacte locatie van de buitenruimte.