Este apartamento se encuentra en Langestraat 28 en Den Helder y está disponible para alquiler. La propiedad tiene una superficie habitable total de 86,1 metros cuadrados y cuenta con tres dormitorios, una sala de estar, cocina y baño. El apartamento está ubicado en la primera planta y fue construido en 1977.
La propiedad cuenta con varias comodidades, incluyendo un jardín y almacenamiento externo. La cocina está equipada con electrodomésticos de cocina eléctrica, y el apartamento tiene una caldera mixta de calefacción para calefacción. Otras características incluyen un grifo de ducha termostático. El vecindario, conocido como Sluisdijkbuurt, está a poca distancia a pie de la estación de tren, la estación de autobuses y las tiendas del centro de la ciudad.
La zona de Sluisdijkbuurt tiene una mezcla de tipos de viviendas, incluyendo casas unifamiliares y apartamentos. Aunque el vecindario enfrenta algunos desafíos de habitabilidad, residentes activos trabajan para mantener un entorno limpio y agradable. La propiedad es gestionada por una corporación de viviendas y el precio de alquiler es de 690,77 € por mes, incluido el costo de servicios.
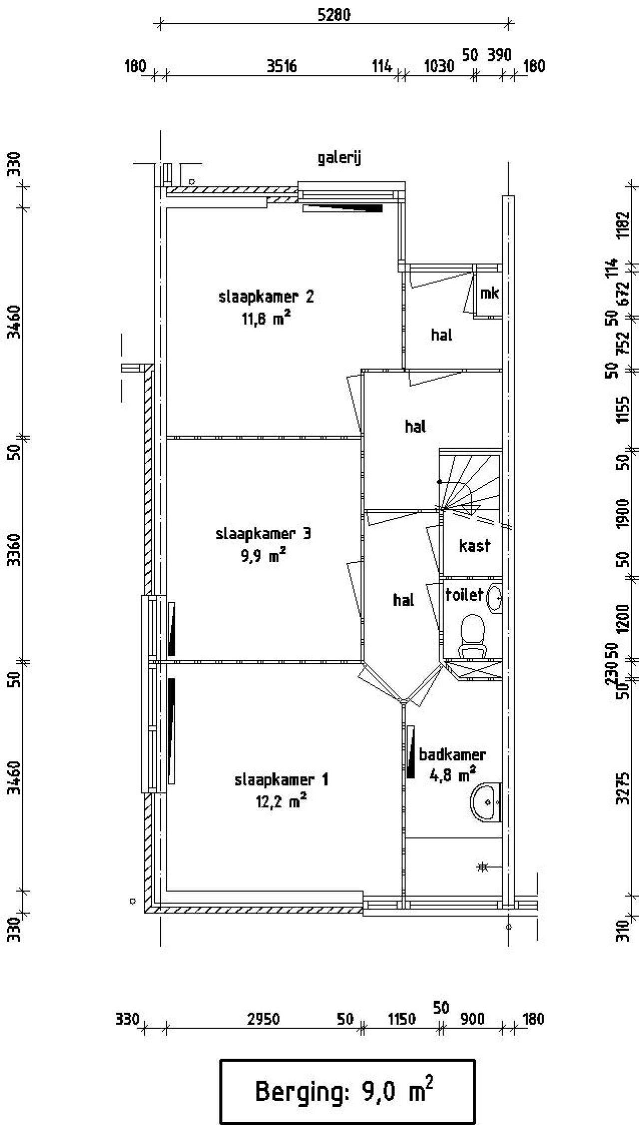
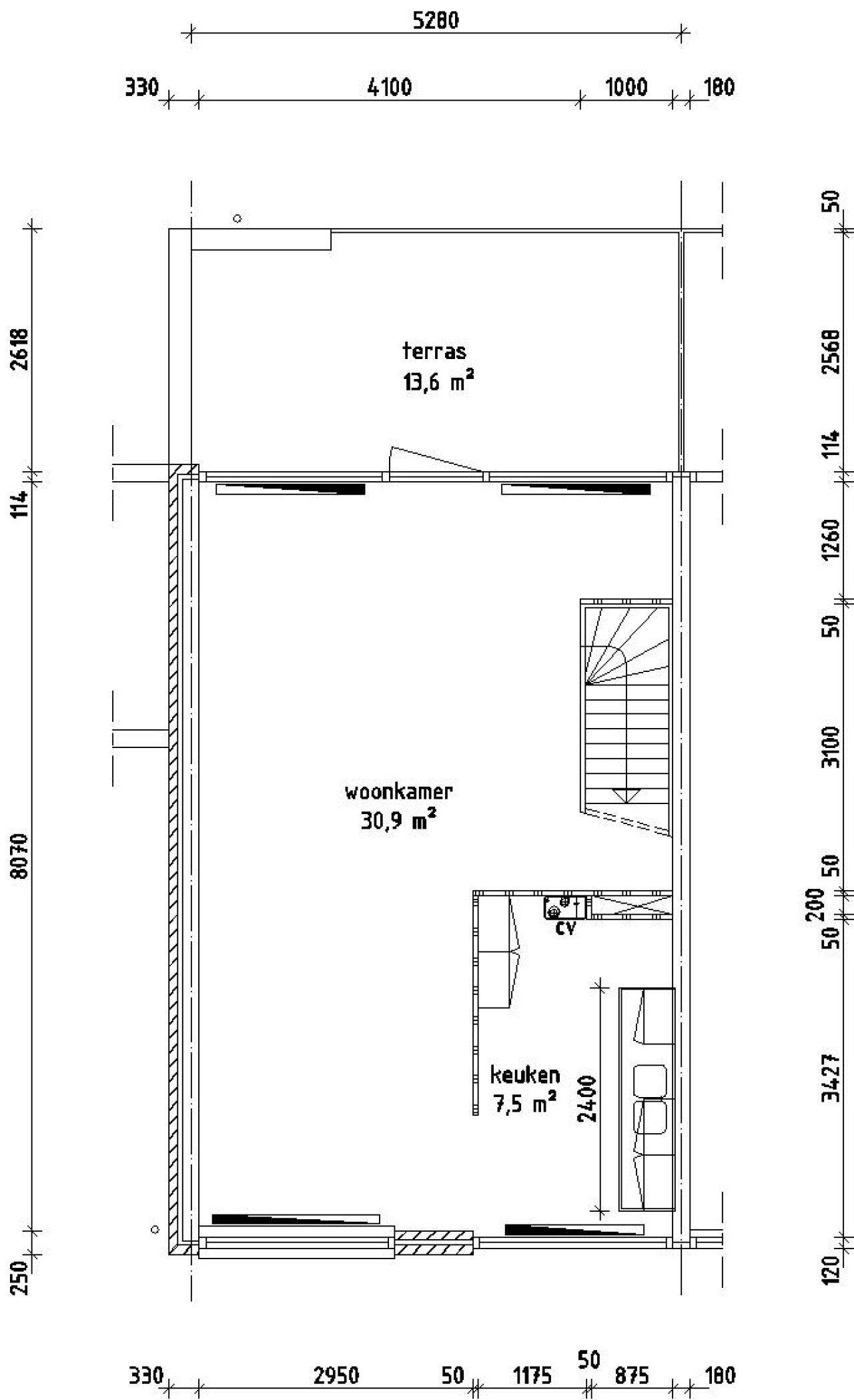
La distribución de la vivienda es la siguiente: tres dormitorios (12,20 m2, 11,80 m2 y 9,90 m2), una sala de estar (30,90 m2), una cocina (7,50 m2), un baño (4,80 m2) y almacenamiento externo (9,00 m2). Se espera que la vivienda esté disponible para alquilar a partir del 9 de enero de 2026.