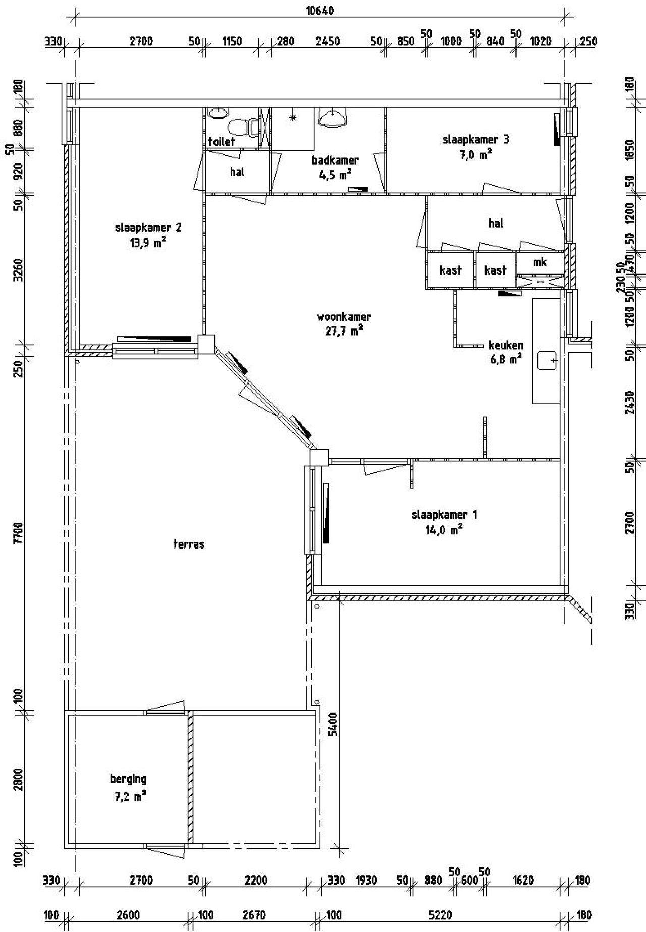
Este apartamento de planta baja se encuentra en Langestraat 34 en Den Helder. El apartamento tiene una superficie habitable total de 81,1 metros cuadrados y cuenta con tres dormitorios, una sala de estar, una cocina, un baño y un trastero exterior. La propiedad fue construida en 1977 y está diseñada pensando en las personas mayores, con un requisito de edad mínima de 65 años.
El apartamento está distribuido con tres dormitorios que miden 14,00 m2, 13,90 m2 y 7,00 m2, una sala de estar de 27,70 m2, una cocina de 6,80 m2 y un baño de 4,50 m2. El trastero exterior tiene una superficie de 7,20 m2. La propiedad está equipada con comodidades modernas como cocina eléctrica y una caldera de calefacción central (CV) combinada. Además, cuenta con un mezclador de ducha termostático.
La propiedad es gestionada por una sociedad de vivienda y tiene una renta neta de €682,96 al mes, con costos de servicio adicionales de €7,81. La fecha de alquiler prevista es el 5 de diciembre de 2025. La propiedad se describe como 'levensloopbestendig' (apto para el ciclo de vida) y tiene una entrada a nivel. El vecindario y la ubicación ofrecen diversas comodidades, lo que lo convierte en una opción atractiva para quienes buscan una vivienda cómoda en Den Helder.
El diseño y las comodidades de la propiedad satisfacen las necesidades de las personas mayores, y aunque el requisito de edad mínima es de 65 años, los solicitantes más jóvenes también pueden solicitarlo pero serán puestos en una lista de espera. La propiedad está disponible para visitas, y se recomienda a las partes interesadas revisar los detalles para las citas de visita y los procedimientos de solicitud.