En el corazón de Ulvenhout, un pueblo al sur de Breda, se han realizado 8 modernos apartamentos de 3 habitaciones. El antiguo local comercial se ha transformado en un pequeño complejo de apartamentos. Los apartamentos están equipados con una bomba de calor en combinación con calefacción por suelo radiante (con función de enfriamiento), y las paredes están elegantemente acabadas con papel pintado y pintura. El apartamento está equipado con 7 paneles solares. Además, el complejo cuenta con un almacén de bicicletas compartido para los residentes. Las instalaciones de estacionamiento están disponibles en el área pública.
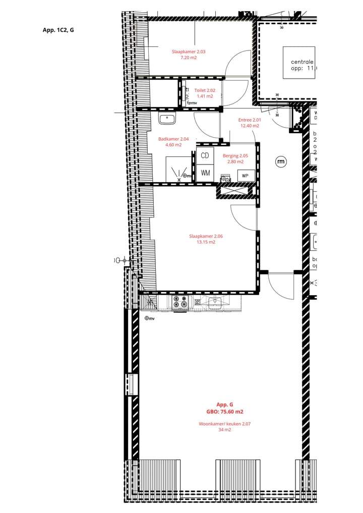
Este apartamento de 3 habitaciones tiene una superficie habitable de aproximadamente 76 m², 2 dormitorios, una cocina moderna con electrodomésticos empotrados, un baño y un aseo independiente con instalaciones sanitarias modernas. El apartamento también cuenta con un almacén compartido en el sótano y sus propios paneles solares.
El complejo ofrece diversas comodidades, incluidas un ascensor y televisión por cable. El apartamento se encuentra en la tercera planta y tiene una superficie habitable total de 76 m². El edificio fue construido en 2024 y tiene una etiqueta energética A+++. El apartamento está completamente aislado, y la calefacción es proporcionada por una bomba de calor y calefacción por piso.
El vecindario se caracteriza por su ubicación central en Ulvenhout, rodeado de zonas residenciales. El apartamento está disponible para alquiler a partir del 1 de diciembre de 2025, con un alquiler mensual de 1.425 € sin gastos de servicio. El apartamento es totalmente libre de gas, y los costes energéticos son relativamente bajos gracias a los paneles solares y al sistema de calefacción eficiente.