Esta casa unifamiliar elegante y cómoda se encuentra en Fokkesteeg, Nieuwegein. La propiedad ofrece 112 m² de superficie habitable, lo que la convierte en un hogar ideal para las familias. Al entrar, experimentarás la amplia apertura de la casa, con una acogedora sala de estar que mira a un jardín verde, el lugar perfecto para relajarse. La casa forma parte de un vecindario verde y apto para niños, adecuado para familias con hijos.
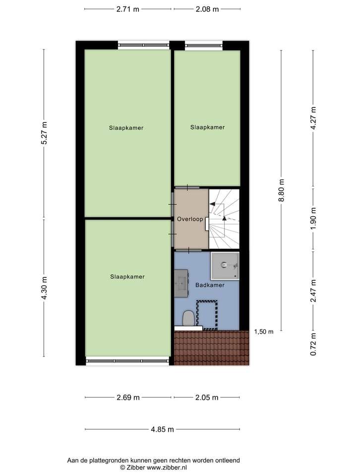
La casa se distribuye en una sola planta y cuenta con un pasillo con un guardarropa y un contador de suministro, un aseo y escaleras que conducen a la primera planta. La sala de estar y el comedor son espaciosos, con una cocina americana moderna equipada con todos los electrodomésticos necesarios. La cocina está ubicada en la parte delantera de la casa, mientras que la sala de estar está en la parte trasera y da acceso al jardín. En la primera planta hay tres dormitorios y un baño con ducha a lio y un aseo adicional. El ático, accesible a través de una escalera fija, ofrece espacio para instalaciones de lavandería.
El vecindario es ideal para familias, con varias áreas de juegos donde los niños pueden jugar con seguridad. La zona también está cerca de escuelas y de un centro de salud. Para las compras diarias, los residentes pueden visitar el centro comercial local, mientras Cityplaza ofrece una experiencia de compras más amplia con 90 tiendas, un cine y un teatro. La zona está bien conectada, con el tranvía rápido y las autopistas A2, A12 y A27 cerca, lo que facilita el acceso a Nieuwegein y a Utrecht. Los amantes de la naturaleza pueden disfrutar de los hermosos senderos de ciclismo y senderismo en Park Oudegein y en la dársena Lek.
La propiedad se caracteriza por su entorno verde y acogedor, lo que la convierte en un hogar perfecto para aquellos que valoran un entorno de vida tranquilo. El alquiler es de 1.575 € al mes, excluyendo servicios públicos y otros gastos. La propiedad fue construida en 1980 y es una casa unifamiliar.