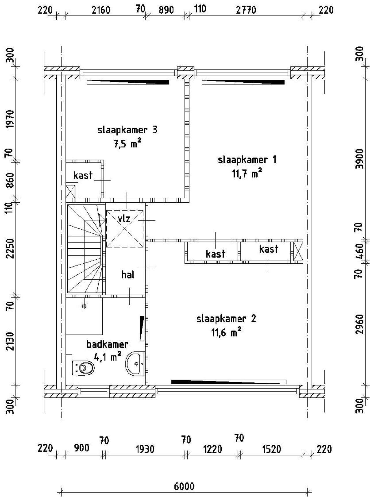
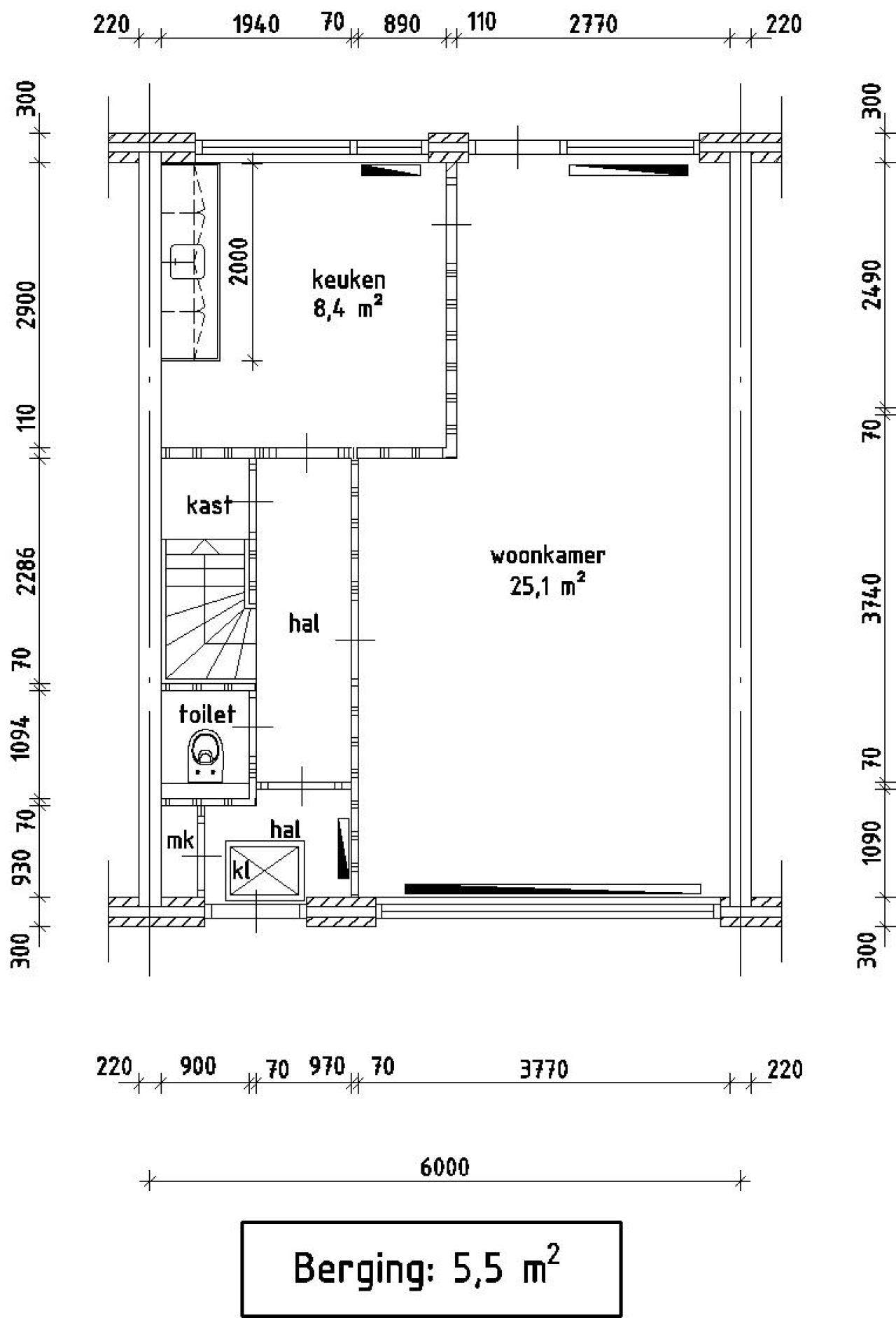
Esta atractiva vivienda unifamiliar se encuentra en Wethouder W. de Boerstraat 49 en Julianadorp. Construida en 1962, la propiedad abarca 73,9 metros cuadrados y cuenta con tres amplios dormitorios, una sala de estar, cocina, baño y trastero exterior. La casa está bien equipada con comodidades modernas, que incluyen cocina eléctrica, paneles solares y una caldera combinada para una calefacción eficiente. La propiedad también cuenta con un jardín, que proporciona un espacio exterior sereno para la relajación.
La distribución interior está cuidadosamente diseñada, con una superficie habitable total de 73,9 metros cuadrados distribuidos en varias estancias. Los dormitorios miden 11,70 m2, 11,60 m2 y 7,50 m2, mientras que el salón es de unos generosos 25,10 m2. La cocina mide 8,40 m2 y el baño está equipado con un inodoro independiente, mezclador de ducha termostático y un inodoro adicional. Las características adicionales incluyen espacio de almacenamiento exterior de 5,50 m2.
La propiedad es gestionada por una corporación y está disponible para alquilar por 782,15 € al mes, con un alquiler neto de 774,34 € y gastos de servicio de 7,81 €. Los posibles inquilinos deberán proporcionar una declaración de ingresos de las autoridades fiscales como parte del proceso de solicitud de alquiler.
El barrio de Julianadorp ofrece un entorno de vida agradable, y la propiedad es de fácil acceso a través de Google Maps y Google Streetview para aquellos que deseen explorar la zona de forma remota. En general, esta vivienda unifamiliar presenta una oportunidad atractiva para aquellos que buscan una residencia cómoda y bien equipada en una ubicación deseable.