Esta vivienda unifamiliar, ubicada en Volkerakstraat 71 en Den Helder, está disponible para alquilar. La propiedad cuenta con una superficie habitable total de 104,5 metros cuadrados y dispone de cuatro dormitorios, lo que la hace adecuada para hogares más grandes. La casa fue construida en 1963.
La propiedad incluye varias características deseables como un balcón, trastero exterior, cocina abierta y jardín. La cocina está equipada con cocina eléctrica. La casa también tiene una caldera combinada de calefacción central para la calefacción. Las comodidades adicionales incluyen un grifo de ducha termostático y un inodoro adicional en el baño.
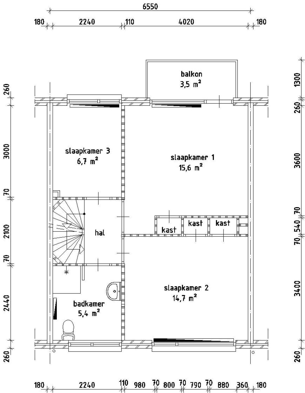
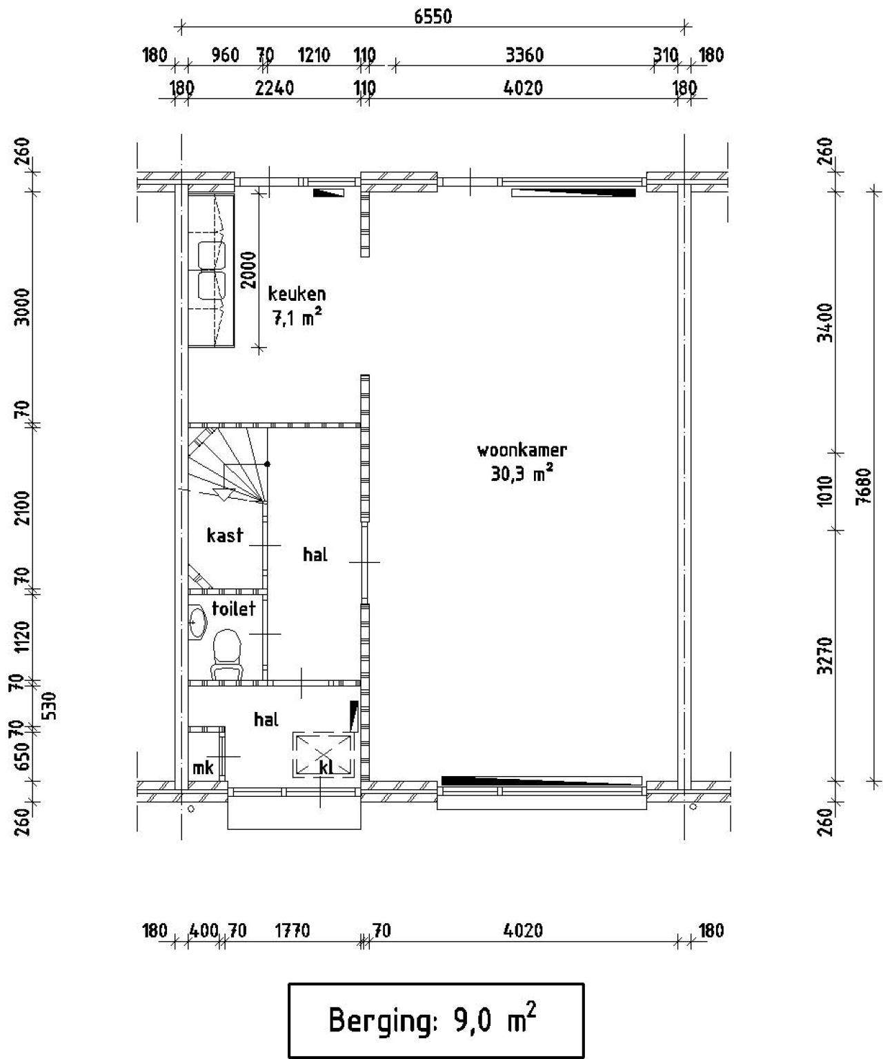
La distribución de la propiedad se divide en una sala de estar de 30,30 metros cuadrados, cuatro dormitorios que varían de 6,70 a 15,70 metros cuadrados, una cocina de 7,10 metros cuadrados y un baño de 5,40 metros cuadrados. El trastero exterior tiene una superficie de 9,00 metros cuadrados.
La propiedad está equipada con paneles solares, lo que contribuye a su eficiencia energética. Se prefiere para hogares de varias personas, con un mínimo de 3 personas requeridas. Se requiere que los posibles inquilinos proporcionen una declaración de ingresos de las autoridades fiscales.