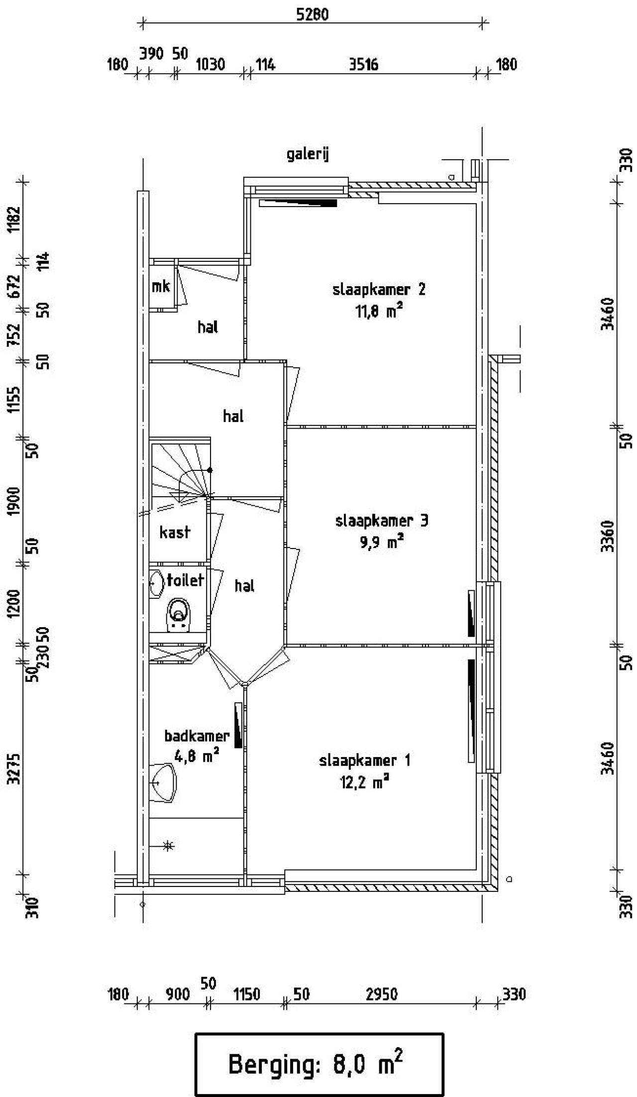
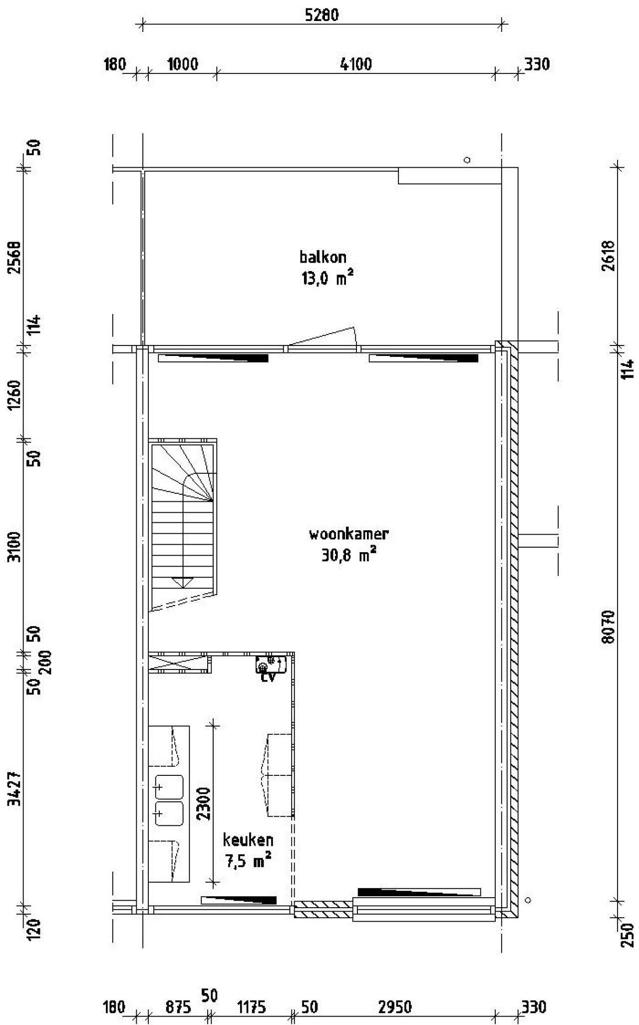
Este apartamento está ubicado en Langestraat 25 en Den Helder y está disponible para alquilar. La propiedad se encuentra en el primer piso y tiene una superficie habitable total de 85 metros cuadrados. Cuenta con tres dormitorios, una sala de estar, una cocina y un baño. El apartamento también tiene un balcón y espacio de almacenamiento exterior.
La propiedad fue construida en 1977 y cuenta con diversas comodidades, que incluyen cocina eléctrica y un sistema de calefacción central con caldera mixta. El apartamento está bien equipado con un grifo de ducha termostático. La distribución del apartamento es la siguiente: tres dormitorios que miden 12,20, 11,80 y 9,90 metros cuadrados, una sala de estar de 30,80 metros cuadrados, una cocina de 7,50 metros cuadrados y un baño de 4,80 metros cuadrados. También hay un trastero exterior de 8,00 metros cuadrados.
El alquiler del apartamento es de 720,83 € al mes, que incluye 713,02 € de alquiler neto y 7,81 € de gastos de comunidad. La propiedad es administrada por una corporación de vivienda y está disponible para alquilar a partir del 24 de febrero de 2026. El proceso de solicitud implica una visita grupal y un proceso de registro a través de la cuenta de Woonmatch.
El vecindario y la ubicación del apartamento ofrecen diversas comodidades y servicios. La propiedad está situada en una zona residencial con acceso a servicios locales. Las características y la ubicación del apartamento lo convierten en una opción atractiva para aquellos que buscan una residencia espaciosa y bien equipada en Den Helder.