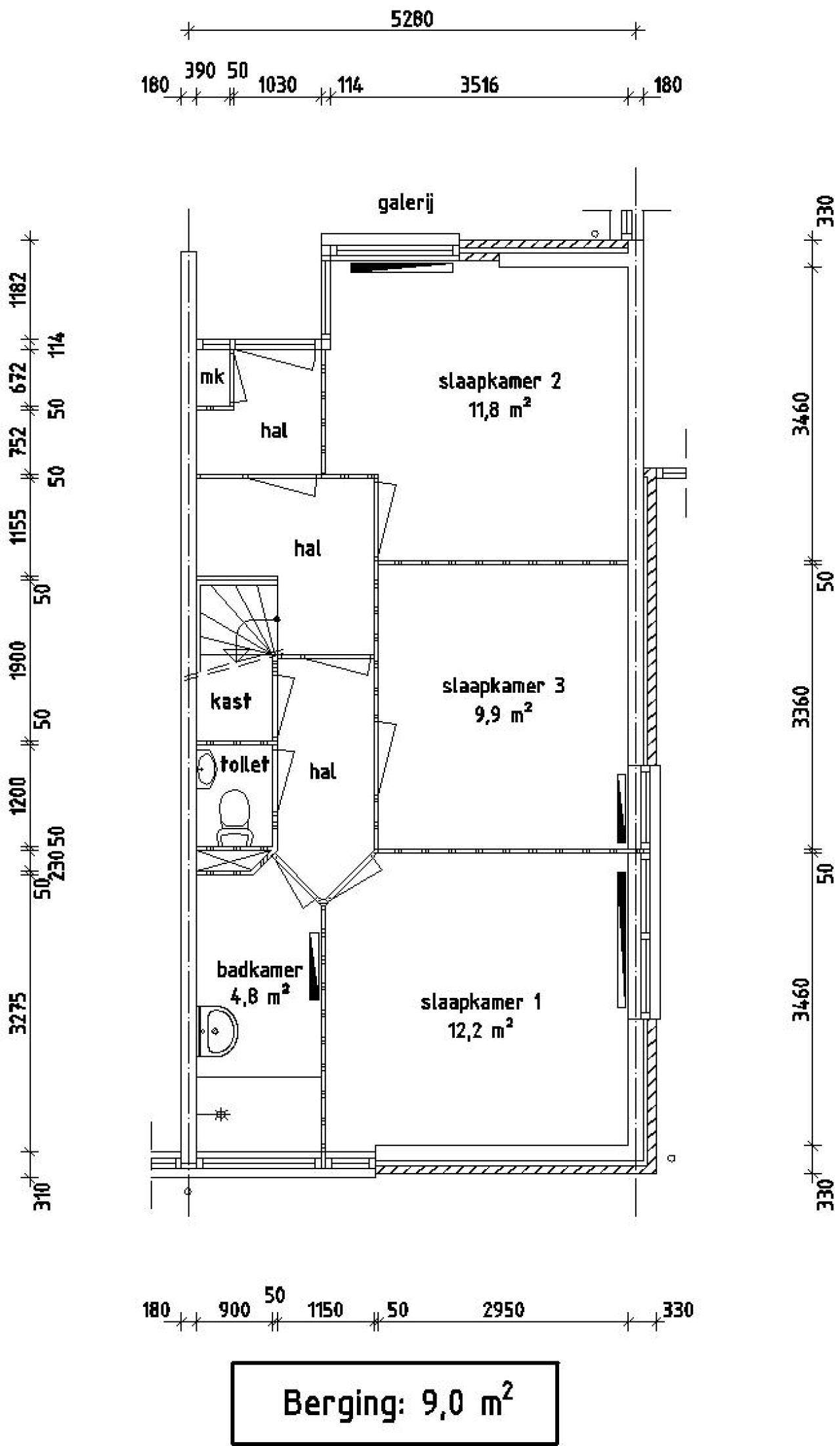
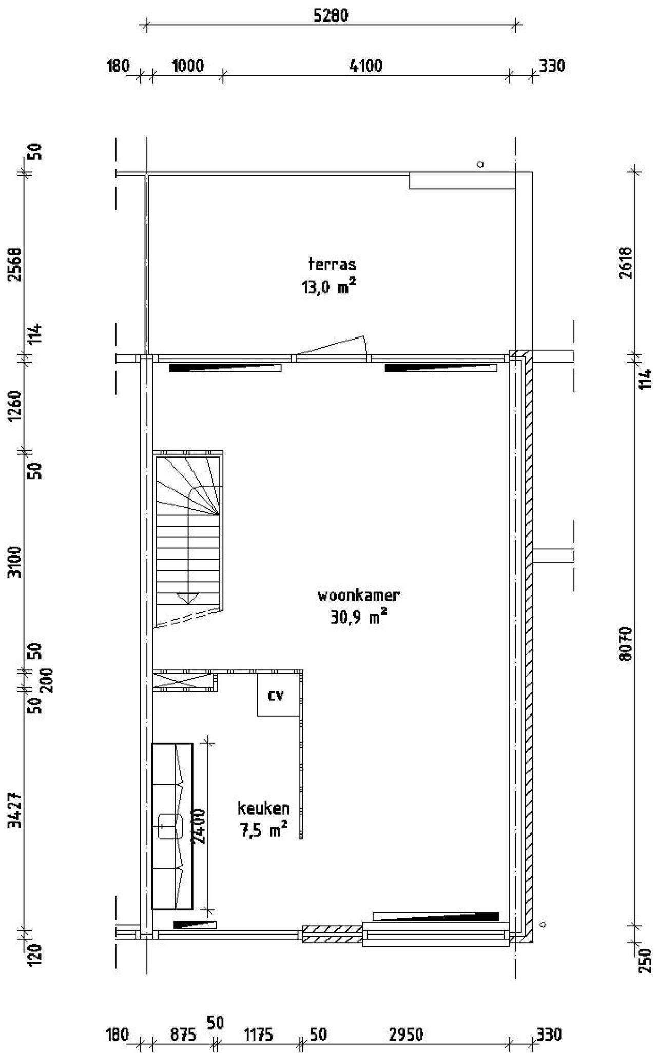
Este apartamento en la primera planta está situado en Langestraat 22 en Den Helder. El apartamento tiene una superficie habitable total de 86,1 metros cuadrados y fue construido en 1977. Dispone de tres dormitorios, una sala de estar, una cocina y un baño. La propiedad incluye un balcón y un trastero exterior.
El apartamento está bien equipado con una caldera combinada de calefacción central para calefacción y cocina eléctrica. Las características adicionales incluyen un grifo mezclador de ducha termostático. La distribución del apartamento es la siguiente: Dormitorio 1 tiene 12,20 metros cuadrados, Dormitorio 2 tiene 11,80 metros cuadrados, Dormitorio 3 tiene 9,90 metros cuadrados, la sala de estar tiene 30,90 metros cuadrados, la cocina tiene 7,50 metros cuadrados y el baño tiene 4,80 metros cuadrados. El trastero exterior tiene 9,00 metros cuadrados.
El alquiler mensual del apartamento es de 720,83 €, con un alquiler neto de 713,02 € y gastos de servicio de 7,81 €. La propiedad está gestionada por una corporación de vivienda y está disponible para alquilar a partir del 4 de marzo de 2026.
El vecindario y los detalles de la propiedad se presentan durante la visita, lo que brinda la oportunidad de aprender más sobre el área local y las características del apartamento. La propiedad es una opción ideal para aquellos que buscan un apartamento espacioso y bien equipado en Den Helder.