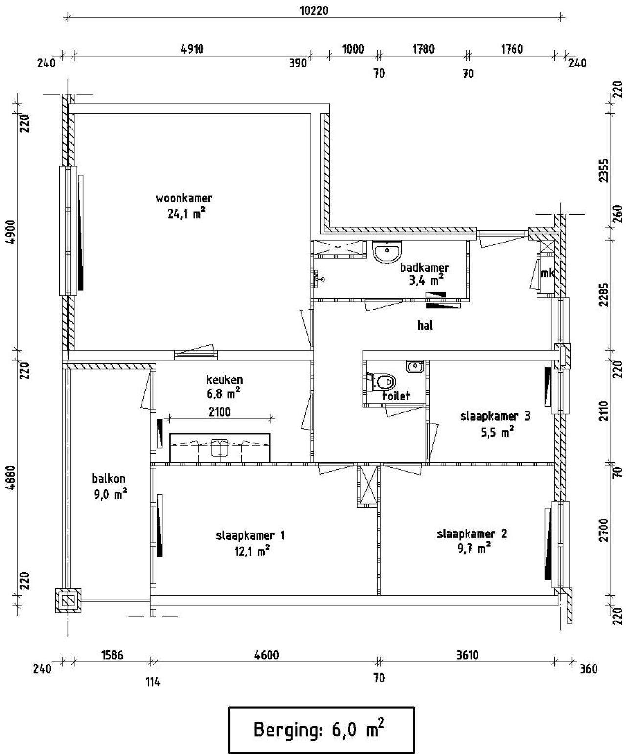
Este apartamento está ubicado en Kanaalweg 214 en Den Helder y está disponible para alquilar. La propiedad tiene una superficie habitable total de 67,6 metros cuadrados y cuenta con tres dormitorios, una sala de estar, cocina, baño y trastero exterior. El apartamento está situado en la 2ª planta y fue construido en 1983.
La distribución del apartamento incluye tres dormitorios con tamaños que van desde 5,5 hasta 12,1 metros cuadrados, una sala de estar de 24,1 metros cuadrados, una cocina de 6,8 metros cuadrados y un baño de 3,4 metros cuadrados. El trastero exterior tiene una superficie de 6 metros cuadrados. La propiedad también cuenta con un balcón, cocina eléctrica y un grifo de ducha termostático.
La propiedad se calienta a través de un sistema colectivo y tiene un intercomunicador para mayor seguridad. Los gastos de servicio incluyen un pago a cuenta del consumo de gas y agua. El alquiler mensual total es de 1.191,61 €, con un alquiler neto de 794,21 € y gastos de servicio de 397,40 €.
El apartamento es gestionado por una corporación y está disponible para alquilar a partir del 23 de enero de 2026. La fecha límite para presentar solicitudes es el 29 de diciembre de 2025.