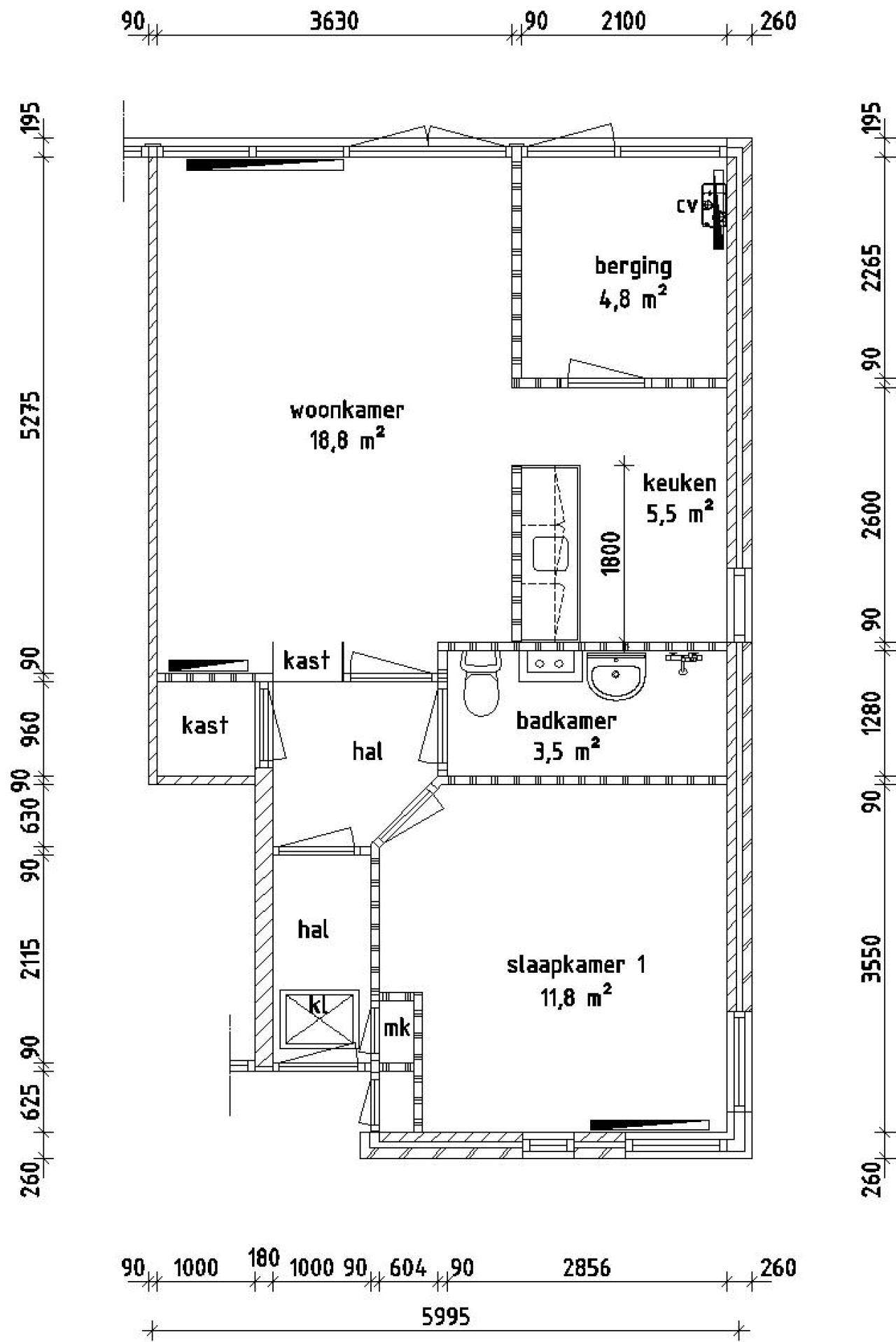
Este apartamento en planta baja está ubicado en Het Koggeschip 98 en Den Helder. El apartamento tiene una superficie habitable total de 44,4 metros cuadrados y fue construido en 1973. Cuenta con un dormitorio, una sala de estar, una cocina y un baño. El apartamento está equipado con comodidades modernas como cocina eléctrica y caldera de calefacción central.
El apartamento está diseñado para ser accesible para personas con problemas de movilidad, con la etiqueta 'Levensloopbestendig'. También viene con un trastero exterior y un jardín, lo que proporciona espacio adicional al aire libre. La propiedad está bien mantenida y ofrece un ambiente de vida confortable.
La distribución del apartamento es la siguiente: el dormitorio tiene 11,80 metros cuadrados, la sala de estar tiene 18,80 metros cuadrados, la cocina tiene 5,50 metros cuadrados y el baño tiene 3,50 metros cuadrados. También hay un área de almacenamiento exterior de 4,80 metros cuadrados. La propiedad se beneficia de características como un grifo de ducha con control termostático, mejorando la experiencia de vida.
El precio del alquiler es de 443,93 € al mes, incluyendo gastos de servicio de 7,81 €. La propiedad es gestionada por una corporación y está disponible para alquilar a partir del 20 de febrero de 2026. Los posibles inquilinos deben proporcionar una declaración de ingresos de las autoridades fiscales como parte del proceso de solicitud de alquiler.