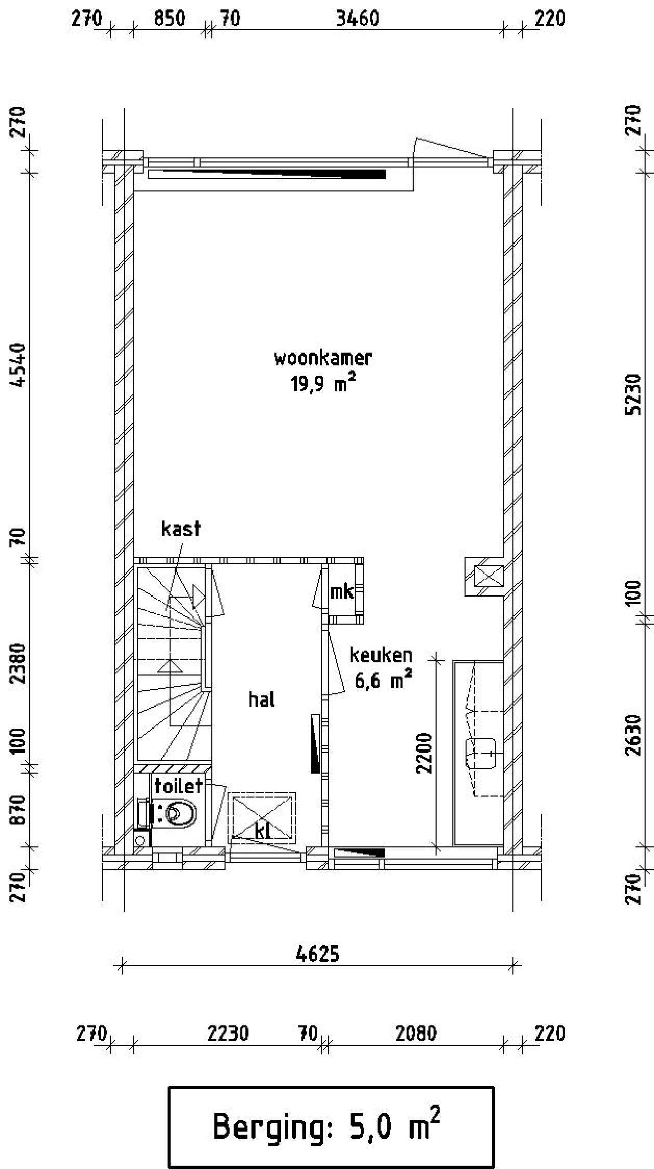
Esta encantadora vivienda unifamiliar está ubicada en Gouwestraat 38 en Den Helder. La propiedad cuenta con una superficie habitable total de 62,6 metros cuadrados y dispone de tres dormitorios. Construida en 1958, ofrece un cómodo espacio de vida en alquiler. La propiedad incluye una cocina abierta y facilidades de cocina eléctrica. Además, cuenta con un jardín, proporcionando espacio al aire libre para los residentes.
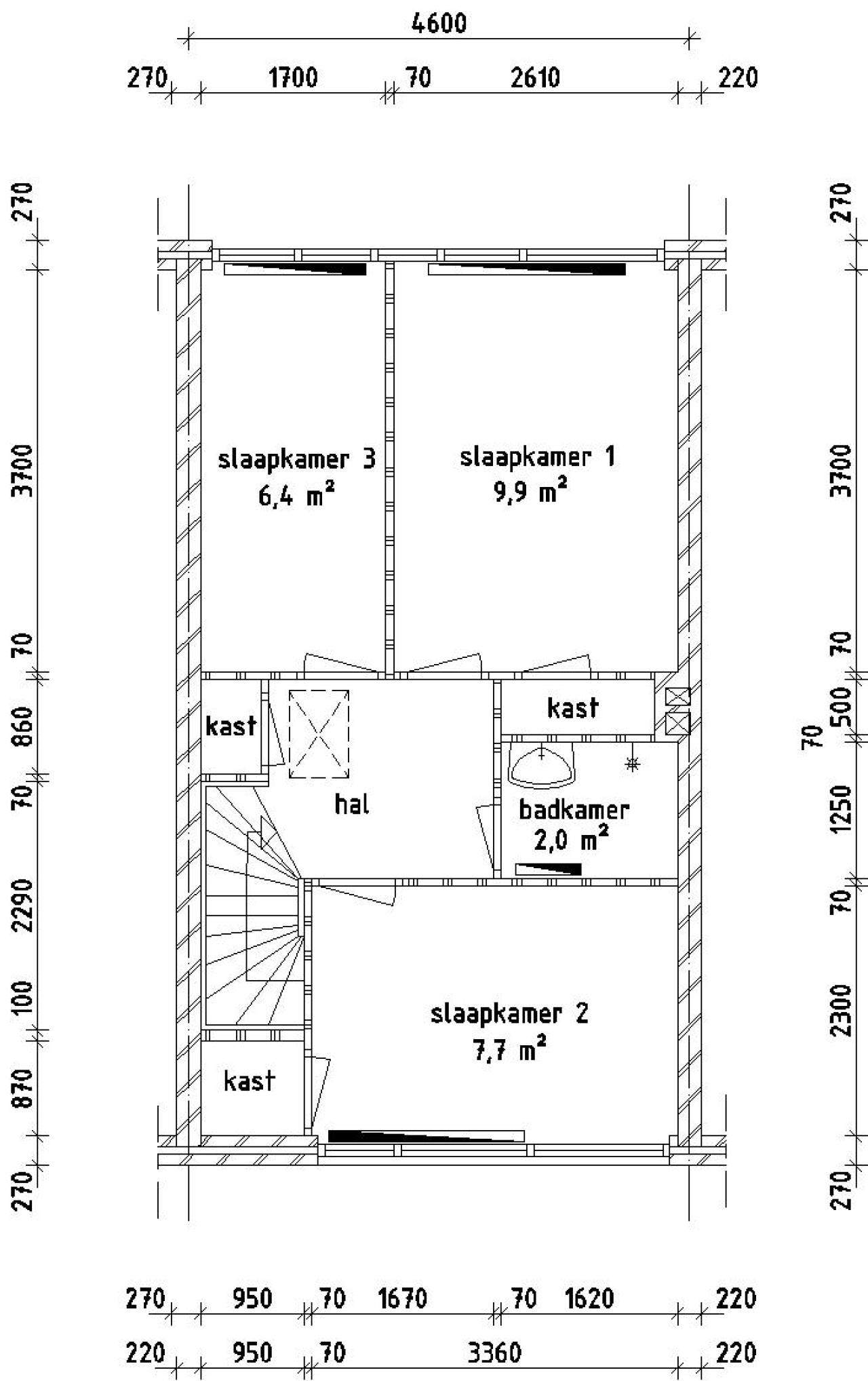
La casa está bien equipada con diversas comodidades, incluyendo una caldera combinada CV para calefacción, paneles solares y un grifo de ducha termostático. La propiedad también cuenta con un inodoro independiente y una trampilla al trastero del ático. Hay trastero exterior disponible para necesidades de almacenamiento adicionales. La distribución incluye tres dormitorios de diferentes tamaños, una sala de estar, cocina, baño y áreas de almacenamiento.
La propiedad es administrada por una corporación y está disponible para alquilar con un alquiler mensual neto de 705,22 €, más gastos de servicio de 7,81 €. La fecha prevista de mudanza es el 16 de febrero de 2026. Los posibles inquilinos deben proporcionar una declaración de ingresos de las autoridades fiscales como parte del proceso de solicitud de alquiler. La propiedad es una excelente opción para aquellos que buscan un hogar cómodo y bien equipado en Den Helder.
Las características y la ubicación de la propiedad la convierten en una atractiva opción de alquiler. Con su jardín y trastero exterior, ofrece un buen equilibrio entre espacio interior y exterior. La inclusión de paneles solares y una caldera combinada CV sugiere eficiencia energética, lo que podría ser beneficioso para los inquilinos que buscan reducir su impacto ambiental. En general, Gouwestraat 38 es una opción sólida para cualquiera que busque una vivienda unifamiliar en Den Helder.