Este apartamento en el 2o piso está ubicado en Duinroosstraat 199 en Den Helder. La propiedad tiene una superficie habitable total de 65,3 metros cuadrados y fue construido en 1962. Cuenta con 2 dormitorios, una sala de estar, una cocina y un baño. El apartamento está equipado con comodidades modernas como cocina eléctrica y paneles solares.
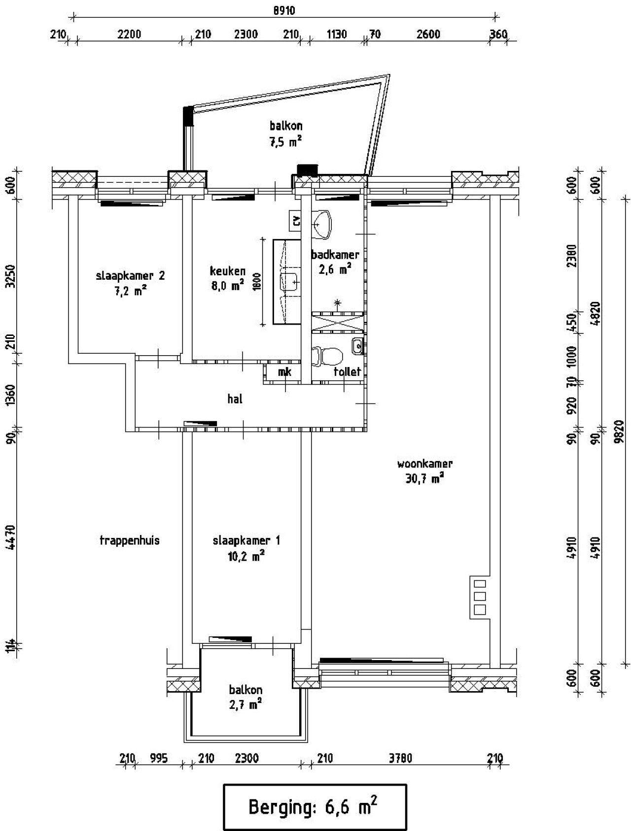
La distribución del apartamento está bien distribuida, con una sala de estar de 30,7 metros cuadrados, dos dormitorios que miden 10,2 y 7,2 metros cuadrados, una cocina de 8 metros cuadrados y un baño de 2,6 metros cuadrados. También hay un trastero externo de 6,6 metros cuadrados. La propiedad tiene un balcón y un jardín, que proporcionan espacio exterior adicional.
La propiedad está bien equipada con características como un interfono de videovigilancia y un mezclador de ducha termostático. La calefacción es proporcionada por una caldera combinada. El apartamento forma parte de un complejo y tiene acceso a almacenamiento externo.
El vecindario está convenientemente ubicado, con la ubicación exacta visible en Google Maps y Google Street View. En general, este apartamento ofrece un espacio de vida cómodo con una mezcla de comodidades modernas y agradables áreas exteriores.