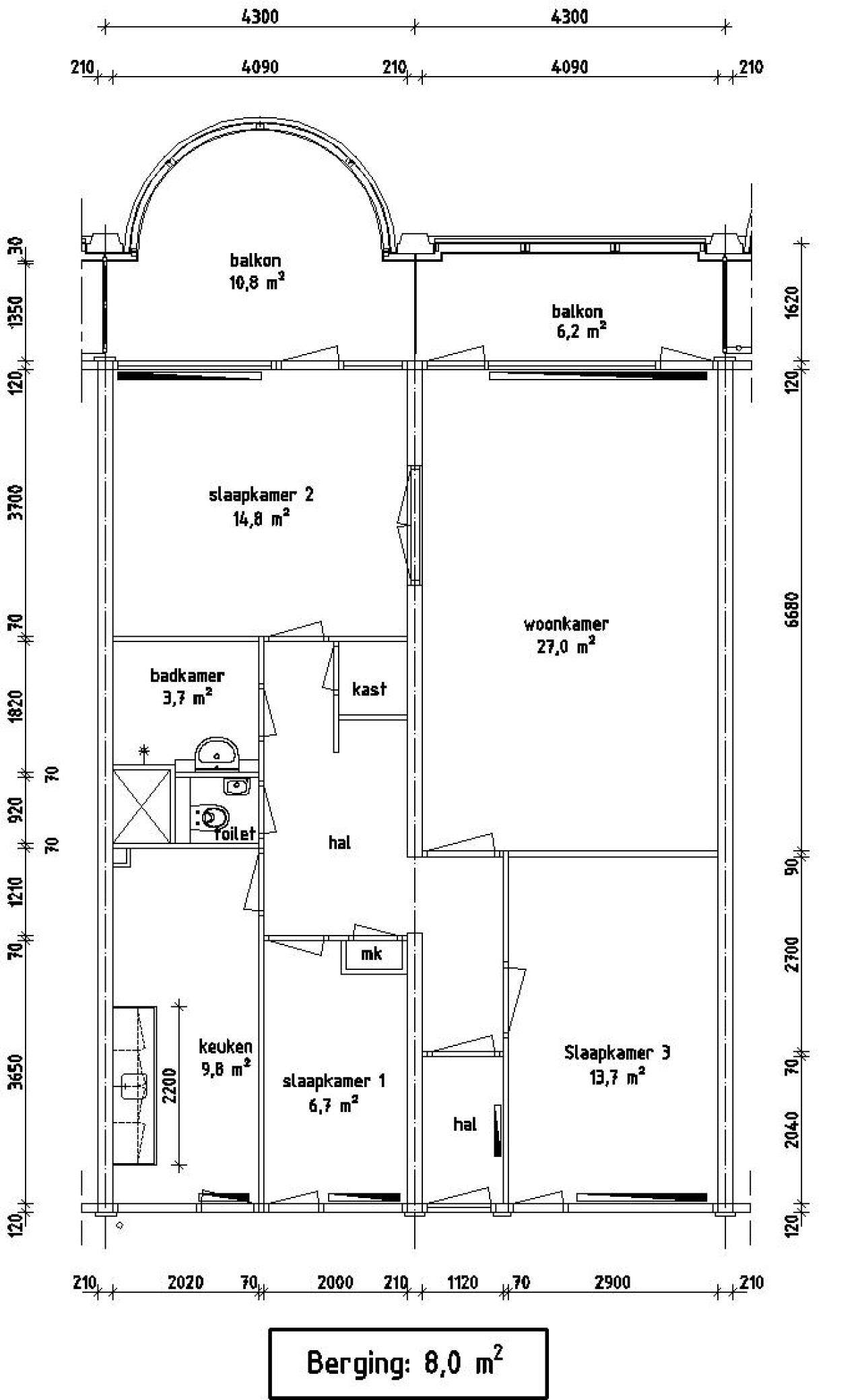
Este apartamento está ubicado en el tercer piso con acceso a ascensor en Baljuwstraat 81, Den Helder. La propiedad cuenta con una superficie habitable total de 83,7 metros cuadrados y fue construida en 1971. Dispone de tres dormitorios, sala de estar, cocina, baño y trastero exterior. El apartamento está diseñado con características aptas para personas mayores, con un requisito de edad mínima de 65 años.
El apartamento está equipado con comodidades modernas, que incluyen cocina eléctrica, balcón y ascensor. La propiedad se calienta de forma colectiva y los gastos de comunidad incluyen un pago anticipado por el consumo de gas y agua. Las características adicionales incluyen un videoportero, un inodoro independiente y un mezclador de ducha termostático.
La distribución del apartamento es la siguiente: tres dormitorios que miden 6,7, 14,8 y 13,7 metros cuadrados, una sala de estar de 27 metros cuadrados, una cocina de 9,8 metros cuadrados, un baño de 3,7 metros cuadrados y un trastero exterior de 8 metros cuadrados. El alquiler es de 900,07 € al mes, con gastos de comunidad que ascienden a 182,84 €, lo que hace que el costo mensual total sea de 1.082,91 €.
La propiedad es administrada por una corporación y está disponible para alquilar a partir del 2 de marzo de 2026. Se requiere que los posibles inquilinos proporcionen una declaración de ingresos de las autoridades fiscales como parte del proceso de solicitud de alquiler.