Esta vivienda unifamiliar con anexo está ubicada en Adriaan de Grootstraat 91 en Den Helder. La propiedad tiene una superficie habitable total de 90,8 metros cuadrados y cuenta con cuatro dormitorios. Construida en 1966, ofrece un espacio habitable confortable para un hogar de varias personas, ya que preferiblemente se alquila a hogares con un mínimo de tres personas.
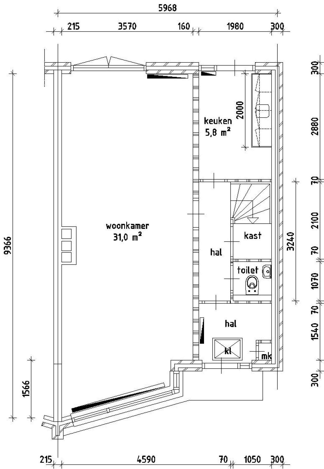
La propiedad cuenta con garaje, jardín y diversas comodidades como cocina eléctrica, paneles solares y una caldera combinada de calefacción central. Las características adicionales incluyen un inodoro independiente y un grifo de ducha termostático. La distribución consta de una sala de estar, cocina, baño y cuatro dormitorios de diferentes tamaños. El garaje añade 18 metros cuadrados adicionales de espacio de almacenamiento.
El vecindario está convenientemente ubicado en Den Helder, con acceso a los servicios locales. Las especificaciones de la propiedad la convierten en una opción atractiva para quienes buscan un hogar espacioso y bien equipado. La inclusión de paneles solares y un sistema de calefacción moderno aumenta su atractivo.
En general, esta propiedad es una excelente opción para un hogar de varias personas que buscan una casa cómoda y espaciosa en Den Helder. Con su gama de comodidades y su ubicación conveniente, es una oportunidad de alquiler ideal para quienes buscan una residencia bien equipada.