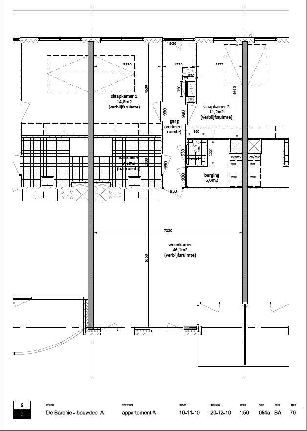
Este apartamento está ubicado en Baronie 3 en Alphen aan den Rijn. Es un apartamento en planta baja con un total de 2 dormitorios. La sala de estar tiene 40 m², y los dormitorios miden 15 m² y 11 m². El apartamento cuenta con una cocina abierta y tiene un balcón. También hay espacio de almacenamiento disponible. El edificio fue construido en 2014 y tiene una etiqueta energética A, lo que indica que es muy eficiente energéticamente. El apartamento está equipado con calefacción central utilizando una caldera combinada. El alquiler total es de 970,21 €, que incluye un alquiler base de 932,93 € y gastos de servicio de 37,28 €.
El apartamento forma parte de un complejo con acceso por ascensor, lo que lo hace adecuado para aquellos que prefieren o requieren vivir en la planta baja. El vecindario se encuentra en la zona de Hoorn de Alphen aan den Rijn. La fecha exacta de disponibilidad no se especifica, pero se espera después de una inspección final.
Esta propiedad se ofrece a través de un acuerdo personalizado local, que implica reglas de asignación específicas. Las partes interesadas deben ser conscientes de estas reglas, que no siempre permiten mostrar su posición en la lista de espera. Se establecerá contacto automáticamente si un solicitante es elegible.
Las características de la propiedad, como su ubicación en planta baja, eficiencia energética y servicios disponibles, la convierten en una opción atractiva para posibles inquilinos. Está clasificada bajo 'Passend thuis', un proyecto destinado a hacer el mercado de la vivienda más dinámico al dar prioridad a ciertos grupos de inquilinos.