Deze gezinswoning, gelegen aan Dr. Mansveltkade 46 in de Oostdorp-wijk van Wassenaar, is verkrijgbaar voor verhuur. De woning heeft 2 slaapkamers en een totale woonoppervlakte van 55 m². De begane grond bewoning maakt deel uit van een rijtjeshuis en werd gebouwd in 1938. Het energielabel is B, wat wijst op een goede energiezuinigheid.
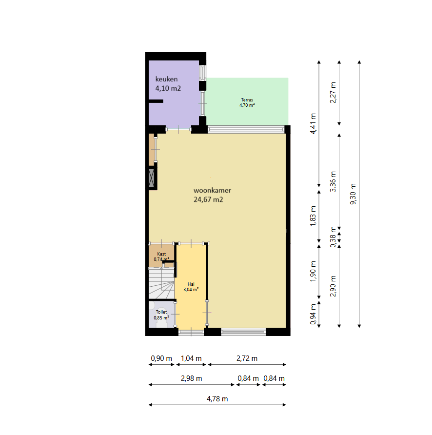
De woning beschikt over een ruime woonkamer van 33 m², een gesloten keuken en twee slaapkamers van respectievelijk 11 m² en 8 m². De badkamer is 5 m². Aanvullende kenmerken zijn onder andere een opslagruimte en een zuidoostelijk georiënteerde tuin. De woning is voorzien van individuele centrale verwarming en elektrische kookfuncties.
Wassenaar is een gemeente nabij Den Haag en Leiden, omgeven door duinen en bossen. Het gebied biedt diverse voorzieningen, waaronder scholen, sportverenigingen, theater, bibliotheek, winkels en restaurants. Het dichtstbijzijnde treinstation bevindt zich in Voorschoten, en de stad is bereikbaar met de bus.
De huurprijs voor deze woning bedraagt €731,93 per maand, met totale kosten van €739,83, inclusief servicekosten. De woning is geschikt voor huishoudens tot 3 personen en minimaal 1 kind. Potentiële huurders dienen ten minste 18 jaar te zijn.