Tussenwoning Nije Poarte 63, Stiens - Te huur
9051 MC (Stiens)
€ 734/ maand + € 50,53 servicekosten




Makelaardij
Woonzorg
Bekijk deze aanbieding op
Deel deze advertentie
Appartementbeschrijving in Stiens
Ruime seniorenwoning te huur in Stiens, geschikt voor 55+
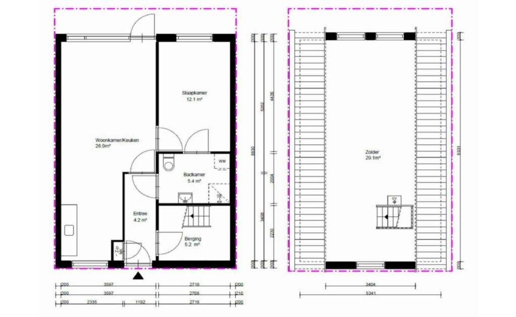
Deze ruime seniorenwoning is gelegen aan Nije Poarte 63 in Stiens en beschikbaar om te huur. De woning is een tussenwoning met een totale woonoppervlakte van 84 m², gebouwd in 1978. Het beschikt over één slaapkamer met een totale oppervlakte van 12 m², een open keuken en een woonkamer van 27 m². De woning bevindt zich op de begane grond en heeft een vaste trap naar de zolder.
De woning maakt deel uit van een seniorenwooncomplex en is bedoeld voor personen van 55 jaar en ouder. Het biedt diverse voorzieningen, waaronder een activiteitenruimte, elektrische kookfaciliteiten, een gezamenlijke tuin en een gedeelde fietsenstalling. De woning heeft ook een tuin maar geen balkon. Opbergruimte is beschikbaar.
De locatie kenmerkt zich door zijn rustige omgeving, een ruime gemeenschappelijke binnentuin en nabijheid van het centrum en bushaltes. Bewoners kunnen zelfstandig wonen in deze goed ontworpen woning.
De totale huur voor deze woning bedraagt €733,48, wat een basishuur van €682,95 en servicekosten van €50,53 omvat. De woning is naar verwachting vanaf begin december beschikbaar, onder voorbehoud van de planning van de aannemer.
Overzicht huur
Prijs
€ 734,00
Servicekosten
€ 50,53
Beschikbaar vanaf
1 december 2024
Basisgegevens woning
Type woning
Appartement
Bouwjaar
1978
Interieur
Slaapkamers
1
Voorzieningen
Type verwarming
Individuele
Keukentype
Open
Kookplaattype
Elektrisch
Buitenzijde
Tuin
Parkeren, opslag en voorzieningen
Gebouwvoorzieningen
Gedeelde voorzieningen
Fietsenberging
Berging aanwezig
Huurdersvereisten & -voorkeuren
Type huurder
Minimumleeftijd
55
Vergelijkbare appartementen te huur in Stiens
Bekijk alles

Huis Uniabuert 6, Stiens - Te Huur
9051 CT (Stiens)
€ 1.000/ maand
Veelgestelde vragen
De rentekosten dekken ook extra kosten zoals nutsvoorzieningen?
De maandelijkse huur dekt meestal alleen de woning zelf. Diensten zoals elektriciteit, water, gas en internet worden vaak apart in rekening gebracht. Controleer altijd de aanbieding of neem contact op om te bevestigen wat inbegrepen is.
Welke documenten heb ik nodig om een woning te huren?
Om een aanvraag in te dienen, heb je doorgaans een door de overheid uitgegeven identiteitsbewijs, recent bewijs van inkomen (of de financiële gegevens van een borg) en mogelijk een werk- of studiebewijs nodig. Specifieke vereisten kunnen in de woningdetails staan vermeld.
Hoe lang duurt het voordat ik een reactie krijg op mijn aanvraag?
Reacties op huuraanvragen duren meestal enkele dagen tot een week, maar dit hangt af van het proces van de verhuurder en de vraag naar de woning. Controleer je e-mail voor updates of extra documentenverzoeken.
Is het mogelijk om de huurprijs of voorwaarden aan te passen?
In de meeste gevallen stellen verhuurders vaste prijzen en voorwaarden vast, maar vragen kan geen kwaad! Het bespreken van details zoals langere huurcontracten of kleine aanpassingen kan, afhankelijk van de verhuurder, een optie zijn.
Wat moet ik doen als ik moet verhuizen voordat het huurcontract afloopt?
Als je vroegtijdig wilt vertrekken, kan het zijn dat je gevraagd wordt iemand te vinden die jouw huur overneemt of dat je een vergoeding moet betalen voor het verbreken van het contract. Controleer je huurovereenkomst voor details en bespreek je opties met de verhuurder.
Nieuwste woningen in Nederland
Bekijk de nieuwste woningen op Luntero. Vind nieuwe appartementen, huizen en studio’s in heel Nederland – dagelijks bijgewerkt om je te helpen sneller je nieuwe thuis te vinden.
Snelle links

LUNTERO
Jouw nieuwe thuis in Nederland: 20.000+ huurwoningen binnen handbereik!
Site Navigatie
Huur Gidsen & Advies


© 2025 Luntero. Alle rechten voorbehouden.















