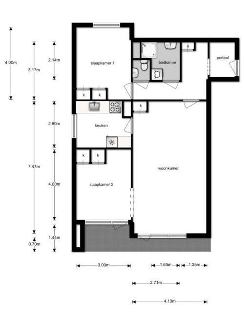
Dit appartement bevindt zich aan Via Regia in Maastricht en biedt een ruime woonkamer van 76 m2. De woning bestaat uit 3 kamers en is beschikbaar voor verhuur tegen €840 per maand, inclusief verbruik. Het appartement is ongemeubileerd en beschikt over een privé badkamer, keuken, toilet, voordeur en woonkamer. Het is direct beschikbaar van de eigenaar, zonder bemiddelingskosten.
Het appartement is gelegen in Maastricht, in de wijk of buurt 'Anders'. De woning is geregistreerd bij de gemeente en is op afspraak bezichtiging beschikbaar. De startdatum van de huurperiode wordt nog bepaald. De huurovereenkomst is voor onbepaalde duur, wat flexibiliteit biedt voor de huurder.
De indeling en voorzieningen van het appartement maken het een aantrekkelijke optie voor wie op zoek is naar een ruime leefruimte. De woning heeft een private keuken en woonkamer, wat het geschikt maakt voor individuen of kleine huishoudens. De aanwezigheid van een private badkamer en toilet verhoogt het comfort.
Met een huur van €840 per maand, inclusief verbruik, biedt dit appartement een comfortabele woonruimte in Maastricht. Het ontbreken van bemiddelingskosten en de directe verhuur door de eigenaar vereenvoudigen het verhuurproces. De kenmerken en de ligging van het appartement maken het een gewilde keuze voor potentiële huurders.