Deze gemeubileerde studio bevindt zich in Hoogland, Amersfoort, en is beschikbaar om te huur. De woning is volledig uitgerust met essentiële apparaten, waaronder een koelkast, wasmachine, oven en verwarming. Daarnaast is er Wi-Fi beschikbaar. De verhuurder kan ook een e-bike voor gebruik door de huurder achterlaten, waardoor het gemakkelijk is om je te verplaatsen.
De studio is geschikt voor één persoon, bij voorkeur een student, en heeft een totale woonoppervlakte van 40 vierkante meter. De huur bedraagt €1.500 per maand, inclusief nutsvoorzieningen. De woning is bereikbaar met het openbaar vervoer, met Utrecht Science Park op ongeveer een uur afstand van deur tot deur en Centraal Station Amersfoort op ongeveer 15-20 minuten met de fiets.
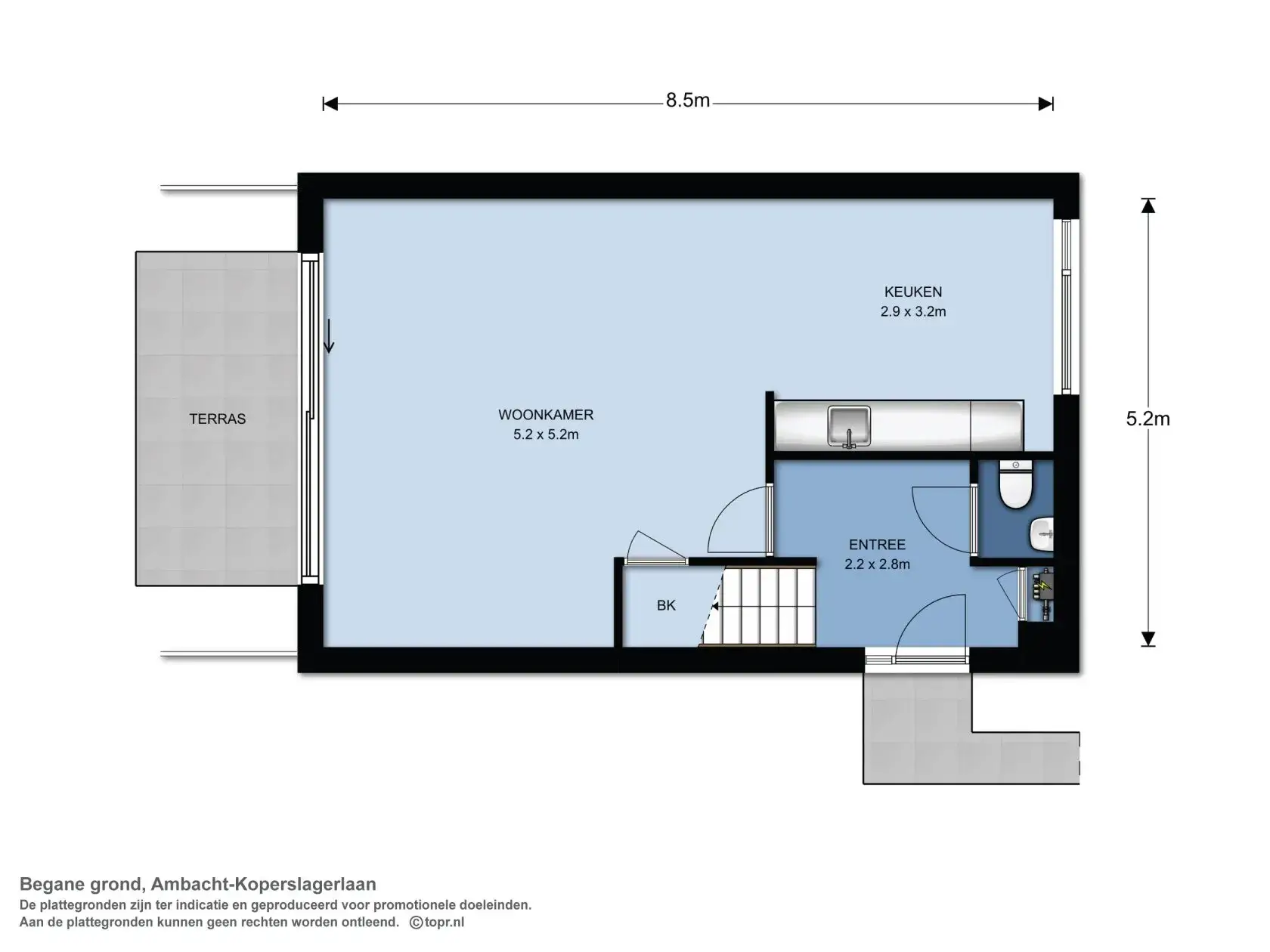
De accommodatie omvat een eigen woonkamer, keuken, badkamer en toilet. Het energielabel is onbekend. De verhuurder zoekt een huurder tussen de 20 en 35 jaar, zonder specifieke gendervoorkeur. De duur van het verblijf is flexibel.
De buurt is gunstig gelegen, met Centraal Station Amersfoort nog maar 15 minuten verwijderd van het centrale station met de trein. Over het algemeen biedt deze studio een comfortabele en gemakkelijke woonruimte voor een student of individu die op zoek is naar een korte termijn huur in Hoogland, Amersfoort.