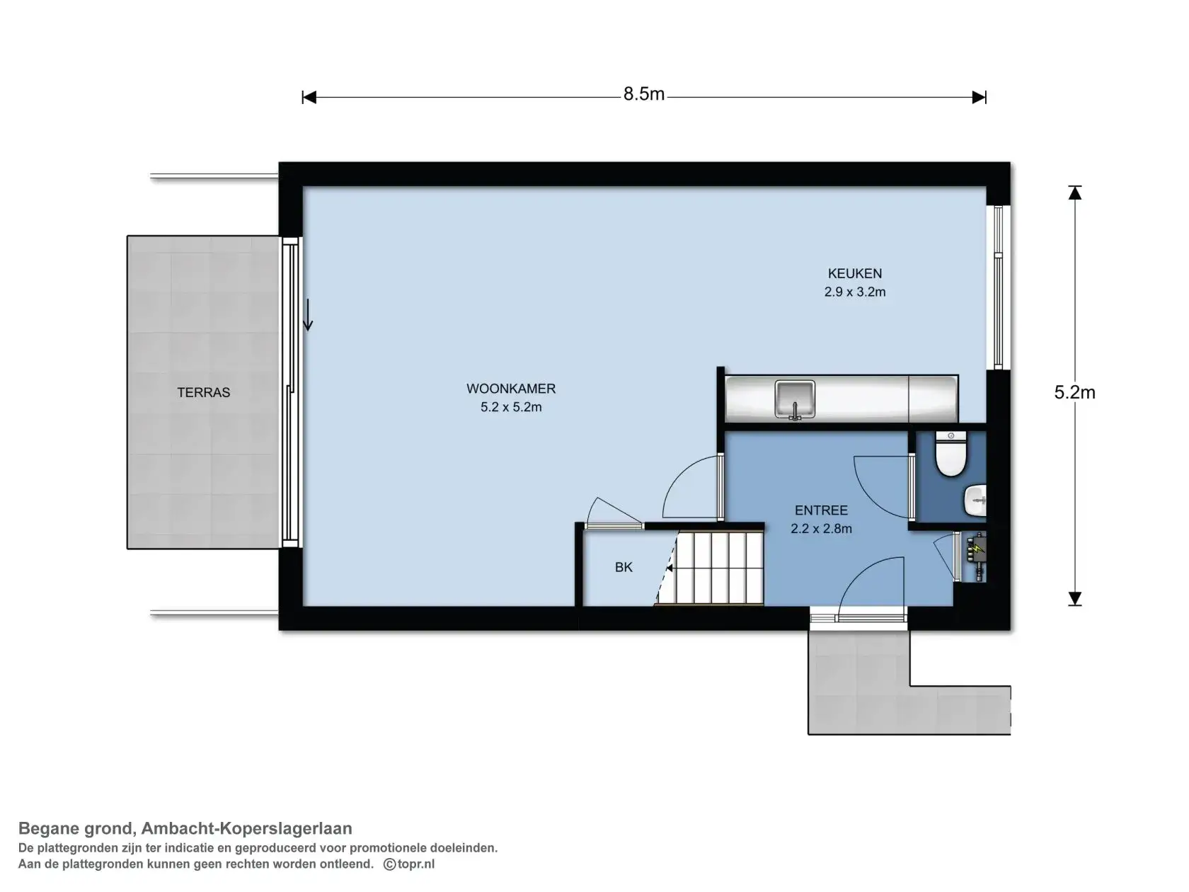
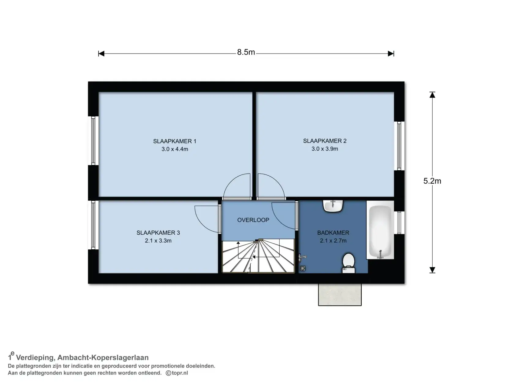
Deze gezinswoning, gelegen aan Ambachtlaan 65 in Hoogland, is te huur. De woning is een twee-onder-een-kapwoning met een woonoppervlakte van 116 m2 en beschikt over 3 slaapkamers en een zolder. De woning ligt aan de rand van het dorp, nabij Park Schothorst, en biedt een serene en groene omgeving.
De woning maakt deel uit van het De Ham-complex en is sinds de bouw in 1989 goed onderhouden. De indeling omvat een keuken aan de voorzijde van het huis, een badkamer met een bad, aparte douche, toilet en wastafel, en een ruime zolder die ideaal is voor wasruimte of extra slaapruimte. De tuin is op het oosten gericht en bevat een stenen opslagruimte.
Hoogland is een rustige woonwijk met veel groen, nu onderdeel van de stad Amersfoort. De wijk is goed bereikbaar met de auto en het openbaar vervoer, het historische centrum van Amersfoort is binnen 15 minuten bereikbaar. De nabijheid van de A1- en A28-snelwegen biedt gemakkelijke toegang tot Utrecht en Amsterdam. Lokale voorzieningen zoals het Kraailandhof-winkelcentrum bevinden zich op fietsafstand, wat dagelijkse behoeften eenvoudig maakt.
De woning wordt beheerd door MVGM Vastgoedmanagement, en geïnteresseerden dienen via hun aangewezen procedure te solliciteren. De huurperiode bedraagt minimaal 1 jaar met een opzegtermijn van 1 maand. De woning heeft energielabel A, wat wijst op zijn energiezuinigheid.