Deze gezellige eengezinswoning is gelegen aan de Prof. P.J. Blokstraat 23 in Den Helder. Gebouwd in 1948, biedt het een totale woonoppervlakte van 78,6 vierkante meter. De woning heeft drie slaapkamers, een woonkamer, keuken, badkamer en extra bergruimtes waaronder een zolder en externe opslag.
De woning is uitgerust met moderne voorzieningen zoals elektrisch koken, een cv-combiketel en zonnepanelen. De badkamer is voorzien van een vrijstaand toilet, thermostatische doucheskraan en een extra toilet. De woning beschikt ook over een tuin, die een rustige buitenruimte biedt.
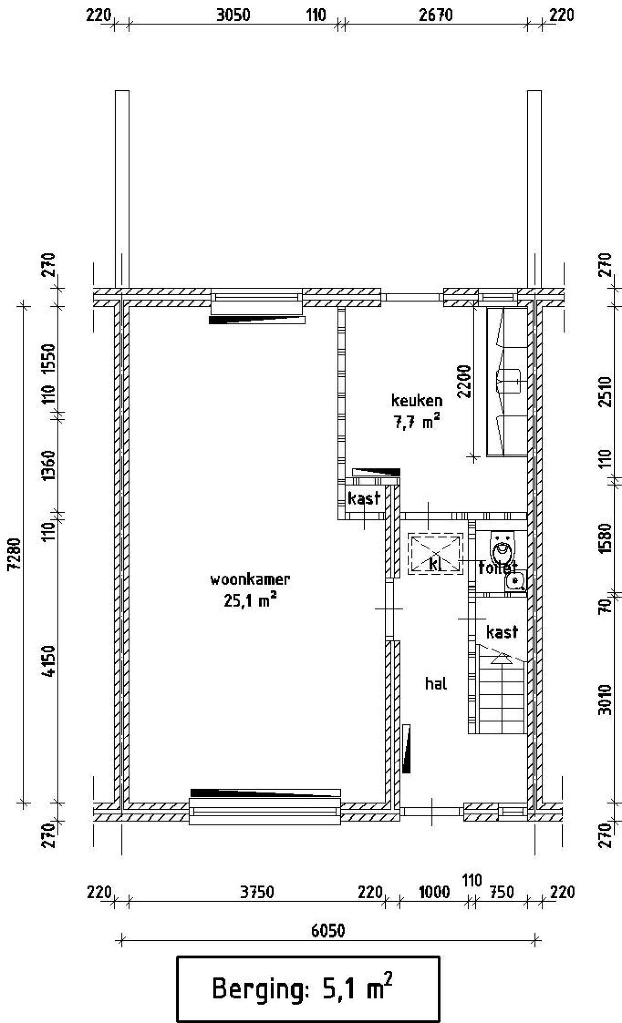
De indeling van de woning is als volgt: de woonkamer beslaat 25,10 vierkante meter, terwijl de drie slaapkamers respectievelijk 14,40, 9,70 en 5,90 vierkante meter meten. De keuken is 7,70 vierkante meter en de badkamer 3,00 vierkante meter. Extra opslagruimte omvat een externe opslagruimte van 5,10 vierkante meter en een zolder van 7,70 vierkante meter.
De woning is beschikbaar voor huur tegen € 739,74 per maand, inclusief servicekosten van € 7,81. De huurperiode zal naar verwachting starten op 30 april 2026. De woning wordt beheerd door een vennootschap, en aanvragers dienen een inkomensverklaring van de Belastingdienst te overleggen.