Deze charmante eengezinswoning bevindt zich aan de Goudenregenstraat 14 in Den Helder. Gebouwd in 1952 beslaat de woning 72,3 vierkante meter en heeft drie slaapkamers. De woning is goed uitgerust met een tuin en externe opslag, wat voldoende ruimte biedt voor bewoners.
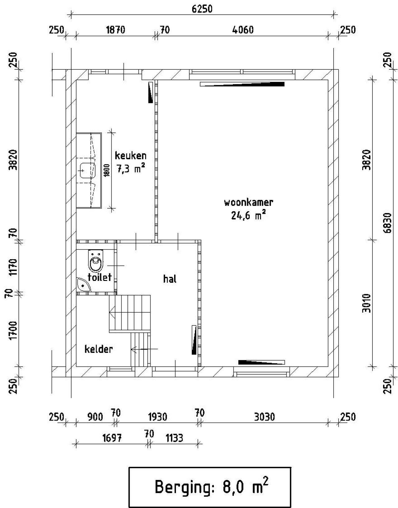
De woning is uitgerust met moderne voorzieningen, waaronder elektrisch koken, zonnepanelen en een centrale verwarmingsketel. De indeling van binnen bestaat uit drie slaapkamers, een woonkamer, een keuken en een badkamer. De totale woonoppervlakte is verdeeld over ruim bemeten kamers, wat zorgt voor een comfortabel leefklimaat.
Extra kenmerken van deze woning omvatten een apart toilet, een thermostatische douchekraan en een extra toilet in de badkamer. Het ontwerp en de voorzieningen maken het een aantrekkelijke optie voor wie op zoek is naar een gezellige en functionele woning.
De buurt en locatie bieden een aangenaam leefklimaat, terwijl de woning zich in een rustige straat bevindt. De omliggende voorzieningen en diensten bevinden zich op korte afstand, wat deze woning een uitstekende keuze maakt voor wie een eengezinswoning in Den Helder huurt.