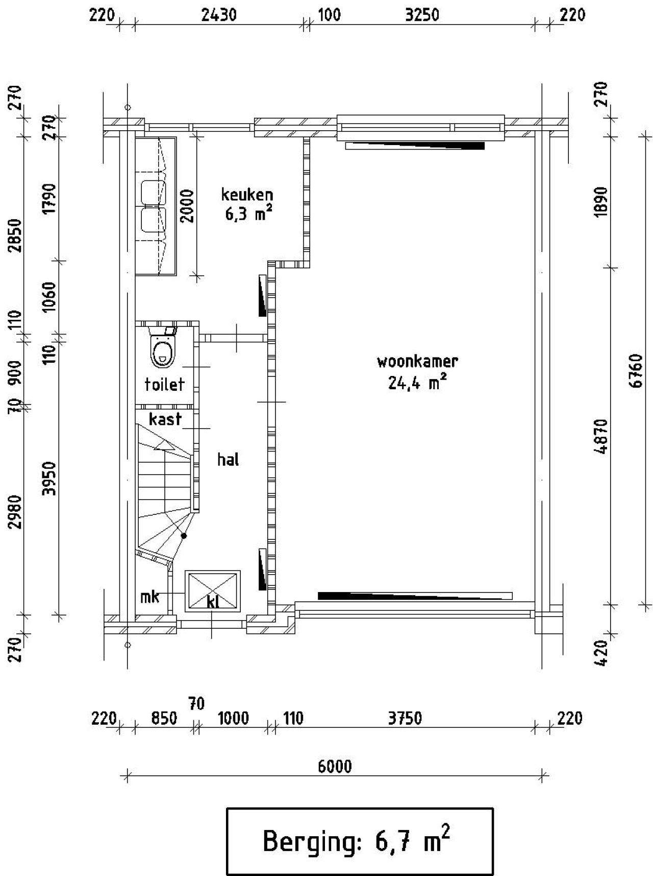
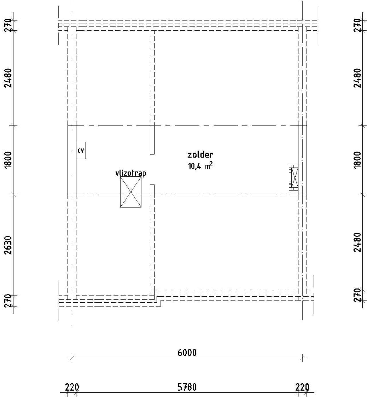
This charming single-family home is located at Diezestraat 9 in Den Helder. The property boasts a total living area of 81.6 square meters and was built in 1958. It features three bedrooms, a living room, kitchen, bathroom, and external storage. The property also includes a garden and a thermostatically controlled shower faucet. Additionally, there is a trapdoor leading to an attic storage area.
The property is well-appointed with modern amenities, including electric cooking and a condensing boiler for heating. The layout is practical, with a total of three bedrooms, ranging in size from 6.1 to 14.3 square meters. The living room measures 24.4 square meters, providing ample space for relaxation. The kitchen is 6.3 square meters in size.
The property is managed by a housing corporation and is available for rent at €739.74 per month, including service costs. The net rent is €731.93, with service costs amounting to €7.81. The property is categorized as a single-family home and is classified under the 'Eengezinswoning' type.
The neighborhood is conveniently located in Den Helder, offering easy access to local amenities. The property's condition and features make it an attractive option for those seeking a spacious and well-equipped home.