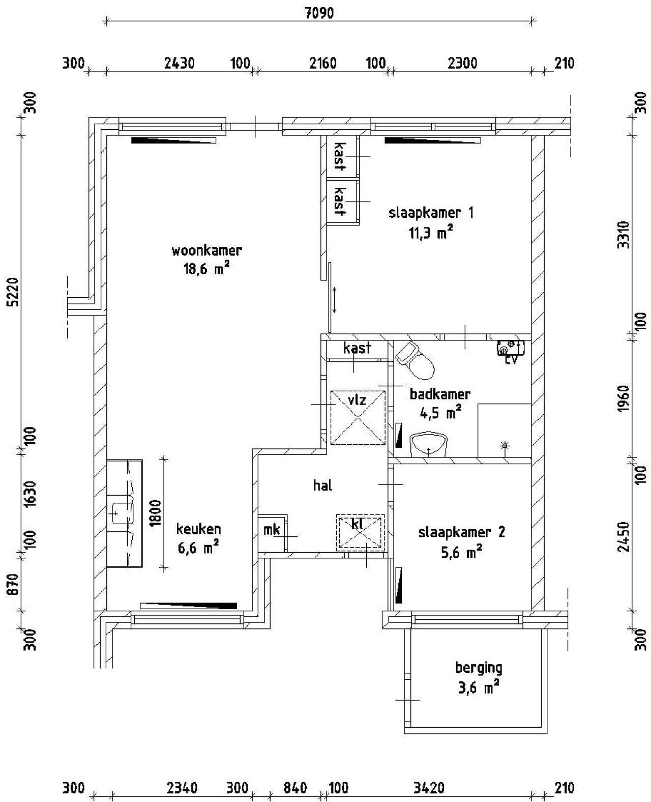
Deze Seniorenwoning bevindt zich op Goeree 10 in Callantsoog en heeft een totale woonoppervlakte van 50,2 vierkante meter. De woning beschikt over twee slaapkamers, een open keuken en een tuin. De woning is ontworpen voor senioren en heeft een minimumleeftijd van 65 jaar. De woning is gebouwd in 1972 en heeft diverse voorzieningen, waaronder interne berging en elektrische kookfaciliteiten.
De indeling van de woning bestaat uit twee slaapkamers, een woonkamer, een keuken, een badkamer en berging.
De woning is uitgerust met moderne voorzieningen zoals een CV-combiketel en een thermostatische douchekraan.
De buurt is stil en rustig, wat het een ideale locatie maakt voor senioren. De woning is goed bereikbaar en ligt in de buurt van diverse voorzieningen. De exacte locatie kan bekeken worden op Google Maps of Google Street View voor een beter begrip van de omgeving.
De huurprijs is € 673,47 per maand, inclusief servicekosten. De woning is beschikbaar voor huur vanaf 17 december 2025, en aanvragen kunnen worden ingediend tot 10 november 2025.