Deze ruime gezinswoning is gelegen aan de Heiman Akkerstraat in de Opwierde-wijk van Appingedam. De woning maakt deel uit van een grootschalig herstructureringsproject en is gebouwd volgens de nieuwste normen. De woning is gasvrij, optimaal geïsoleerd en beschikt over vloerverwarming, een warmtepomp en een mechanisch ventilatiesysteem. Met 9 zonnepanelen beschikt het pand over een uitstekende A++++ energielabel.
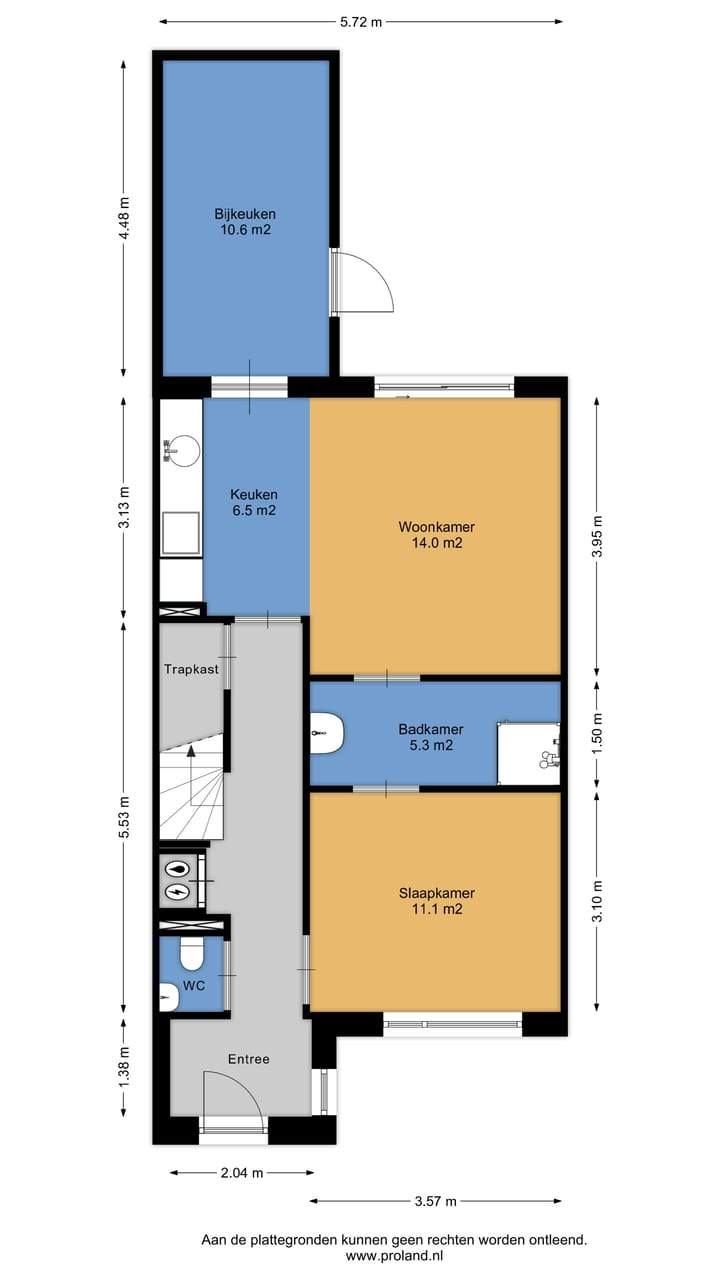
De begane grond bestaat uit een hal met toilet, een berging, een slaapkamer of woonkamer, een badkamer, een woonkamer met schuifdeuren en een open keuken met moderne apparatuur. Een aangrenzende opslagruimte biedt extra ruimte. Op de eerste verdieping zijn er vier slaapkamers, een overloop en een technische ruimte. De woning is volledig gemeubileerd met laminaatvloeren en heeft rolluiken op alle ramen.
De huurprijs bedraagt €1.500 per maand, exclusief energiekosten. Een waarborgsom van twee maandenhuur is vereist. De woning is niet geschikt voor huisdieren en roken is niet toegestaan. Een huurcheck maakt deel uit van de selectprocedure. De woning wordt verwarmd met een warmtepomp en beschikt over vloerverwarming in alle kamers, die per kamer kan worden geregeld.
De woning biedt een totale woonoppervlakte van 103 m² en is gebouwd op een perceel van 186 m². Het heeft een plat dak en telt twee verdiepingen. De woning is voorzien van glasvezelinternet en mechanische ventilatie. De woning is beschikbaar voor huur voor onbepaalde tijd.