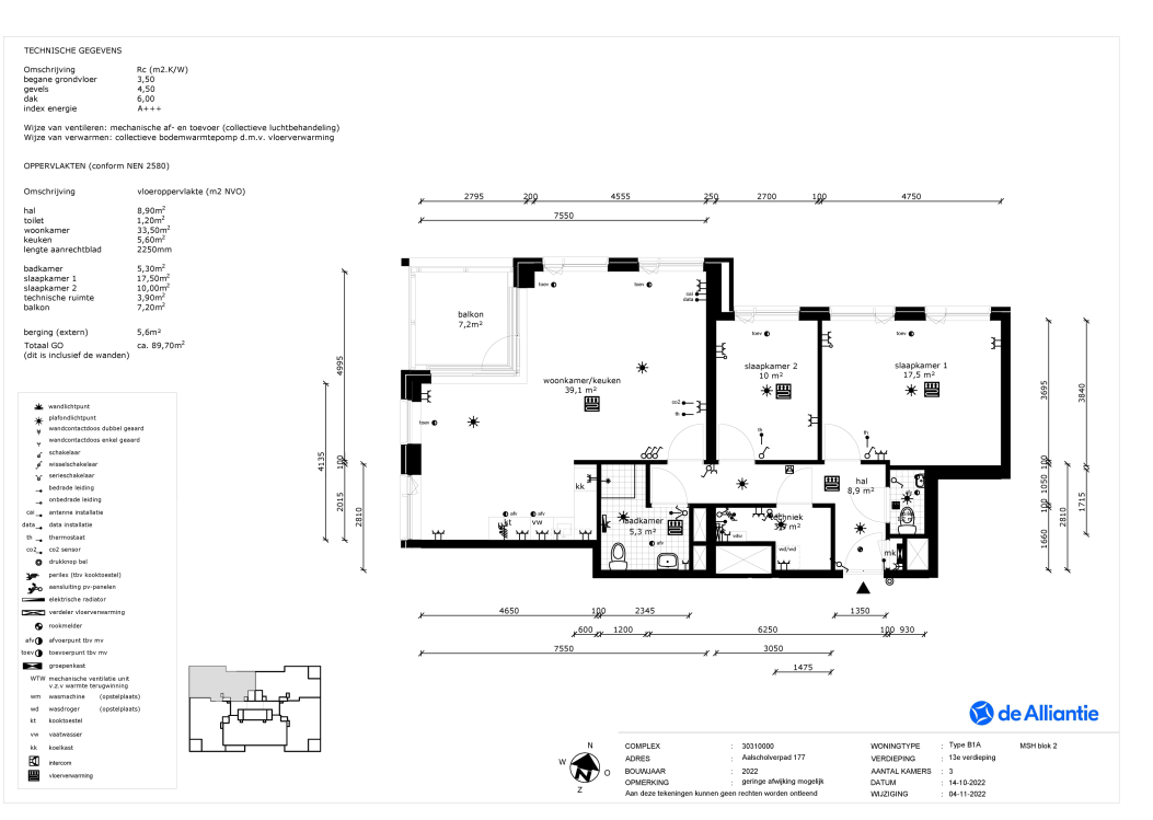
Dit goed onderhouden appartement biedt een combinatie van modern woongenot, licht, ruimte en een panoramisch uitzicht. De ruime woonkamer met grote ramen biedt een aangename en lichte leefomgeving, terwijl u uitkijkt op de stad. Met twee praktische slaapkamers, een stijlvol afgewerkte open keuken en een moderne badkamer is dit een huis waar u direct in kunt wonen. De woonkamer is het hart van het appartement: een fantastische plek om te ontspannen, uitgebreid te dineren en van het uitzicht op Amersfoort te genieten. Alle dagelijkse voorzieningen bevinden zich op loopafstand, en binnen vijf minuten fietsen bent u in het bruisende centrum. U woont hier rustig en zeer centraal. Het appartement ligt op de 13e verdieping en heeft een centrale hal die toegang biedt tot alle kamers. Het appartement beschikt over een ruime hoofdslaapkamer en een tweede kamer die ideaal is als werk- of gastenkamer. De badkamer is modern ontworpen met een inloopdouche, brede wastafel, zwevend tweede toilet en handdoekradiator. Daarnaast is er een apart toiletruimte met wastafel, een praktische opslagruimte met wasmachine-aansluiting en installaties, en een apart meterkast. Alles verkeert in goede staat, zodat u zonder zorgen kunt intrekken. In de parkeerkelder heeft u uw eigen parkeerplaats, een aparte berging en een gedeelde fietsenstalling - comfortabel, veilig en zeer praktisch. Het appartementencomplex ligt langs het rustige Valleikanaal in de Liendertbuurt, op loopafstand van het historische stadscentrum. Kort gezegd: een modern, licht en ruim appartement op een uitstekende locatie. Perfect voor wie comfortabel en centraal wil wonen in Amersfoort! Het appartement heeft een totale woongedeelte van 90 m2 en een inhoud van 234 m3. De huur bedraagt € 1.595 per maand, inclusief parkeergelegenheid. De servicekosten bedragen ongeveer € 59,11 per maand. Het appartement is in 2023 gebouwd en is gasvrij met individuele klimaatregeling per kamer. Het beschikt ook over comfortabele vloerwarming en -koeling door het hele appartement.