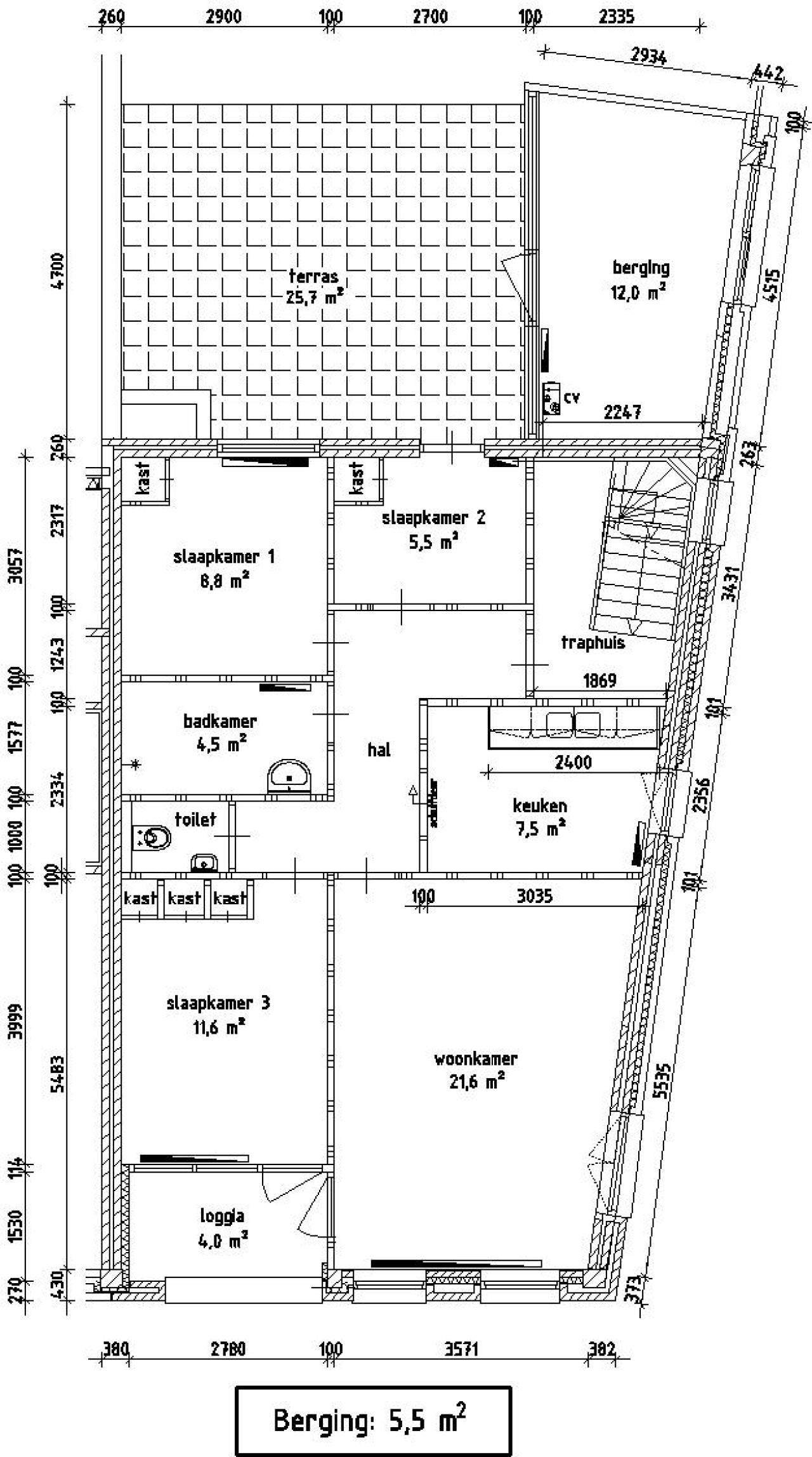
Este apartamento de la primera planta se encuentra en Molenstraat 190I en Den Helder. La propiedad tiene una superficie habitable total de 77 metros cuadrados y cuenta con tres dormitorios, una sala de estar, cocina y baño. El apartamento fue construido en 1965 y ofrece un balcón, trastero exterior e interior y varias comodidades modernas.\n\nEl apartamento está bien equipado con una sala de estar de 21,60 metros cuadrados, tres dormitorios que van desde 5,50 a 11,60 metros cuadrados, una cocina de 7,50 metros cuadrados y un baño de 4,50 metros cuadrados. La propiedad también incluye una zona de almacenamiento de 17,50 metros cuadrados. El apartamento está equipado con cocinas eléctricas y una caldera combinada para la calefacción.\n\nOtras características del apartamento incluyen un sistema de intercomunicación, un aseo separado y una ducha termostática. La propiedad está gestionada por una corporación y tiene una fecha de inicio de alquiler prevista para el 19 de enero de 2026. El alquiler es de 907,88 € al mes, incluyendo 7,81 € en gastos de servicio.\n\nEl apartamento está situado en Den Helder, una ciudad con su propio carácter único. La ubicación exacta se puede ver en Google Maps o Google Streetview para una mejor comprensión del vecindario y sus alrededores.