
LUNTERO
Finde deinen Weg nach Hause mit über 20.000 Angeboten direkt zur Hand!


© 2025 Luntero. Alle Rechte vorbehalten.
LUNTERO
Finde deinen Weg nach Hause mit über 20.000 Angeboten direkt zur Hand!
© 2025 Luntero. Alle Rechte vorbehalten.
6045 GP (Roermond - Kitskensberg)
498 €/ Monat + 20,42 € Nebenkosten
Immobilienmakler
Wonen Zuid
Sieh dieses Angebot auf
Diese Anzeige teilen
Prüfen Sie schnell, wie viele Supermärkte, Schulen, Haltestellen des ÖPNV, Cafés und weitere wichtige Einrichtungen sich in der Nähe dieses Mietobjekts befinden – perfekt, um Komfort, Fußläufigkeit und die Attraktivität der Umgebung zu bewerten.
Entdecken Sie die gefragtesten Stadtteile von Roermond, ideal um Ihre nächste Mietwohnung in den Niederlanden zu finden. Erkunden Sie die Viertel und Bezirke, die Einheimische am meisten schätzen.
Preis
498,00 €
Nebenkosten
20,42 €
Objekttyp
Wohnung
Stockwerk
2
Baujahr
1962
Schlafzimmer
3
Badezimmer
1
Heizungsart
Zentralheizung
Küchentyp
Separat
Geräte
Balkon
Abstellraum vorhanden
Finde alles Wichtige rund um dein zukünftiges Zuhause – Schulen, Geschäfte, Parks und öffentliche Verkehrsmittel. Diese interaktive Karte zeigt dir in Echtzeit, wie weit du zu Fuß, mit dem Fahrrad, Auto oder öffentlichen Verkehrsmitteln brauchst. Egal ob du zur Arbeit fährst, zur Uni gehst oder Freizeitangebote nutzt – plane deinen Alltag mit Klarheit und Vertrauen. Entdecke, wie gut dein neues Viertel angebunden ist.
Ellingtonstraße, Roermond - Einfamilienhaus
6044 VA (Roermond)
1.295 €/ Monat
Deckt die Miete zusätzliche Kosten wie Nebenkosten ab?
Die monatliche Miete deckt in der Regel nur die Immobilie selbst ab. Dienstleistungen wie Strom, Wasser, Gas und Internet werden oft separat berechnet. Überprüfe immer das Angebot oder kontaktiere den Anbieter, um zu bestätigen, was enthalten ist.
Welche Unterlagen benötige ich, um eine Immobilie zu mieten?
Für eine Bewerbung benötigst du in der Regel einen amtlichen Lichtbildausweis, einen aktuellen Einkommensnachweis (oder die finanziellen Daten eines Bürgen) und möglicherweise ein Arbeits- oder Studiendokument. Die genauen Anforderungen können in den Immobiliendetails angegeben sein.
Wie lange dauert es, bis ich eine Rückmeldung zu meiner Bewerbung erhalte?
Die Antwort auf Mietbewerbungen dauert in der Regel einige Tage bis zu einer Woche, abhängig vom Vermieter und der Nachfrage. Überprüfe regelmäßig deine E-Mails auf Updates oder zusätzliche Dokumentenanforderungen.
Ist es möglich, den Mietpreis oder die Bedingungen anzupassen?
In den meisten Fällen legen Vermieter feste Preise und Bedingungen fest, aber es schadet nie, nachzufragen! Über Details wie längere Mietverträge oder kleine Anpassungen zu sprechen, könnte je nach Vermieter eine Option sein.
Was soll ich tun, wenn ich vor Ablauf des Mietvertrags ausziehen muss?
Wenn du früher ausziehen musst, könnte von dir erwartet werden, einen Nachmieter zu finden oder eine Gebühr für die Vertragsauflösung zu zahlen. Überprüfe deinen Mietvertrag und sprich mit deinem Vermieter, um deine Optionen zu klären.
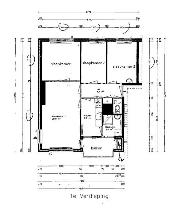
Die Wohnung befindet sich im 2. Obergeschoss eines Gebäudes im Kitskensberg-Viertel von Roermond-Zuid. Das Gebäude wurde 1962 erbaut und die Einheit hat keinen Aufzug. Die Immobilie hat ein Energieeffizienzlabel C und einen Energieindex von 1,45. Die Heizung wird durch eine eigenständige Zentralheizung (eigene Heizungsanlage) bereitgestellt.
Die Wohnungsaufteilung umfasst ein Wohnzimmer von ca. 21 m² und drei separate Schlafzimmer mit Bodenflächen von ca. 8, 10 und 12 m². Die Küche ist geschlossen und es gibt ein Badezimmer mit Dusche und Anschluss für eine Waschmaschine. Eine separate Toilette ist in der Wohnung vorhanden. Es gibt kein Dachgeschoss und keinen privaten Garten, der mit der Einheit verbunden ist.
Ein Balkon ist vom Wohnzimmer und von der Küche aus zugänglich. Die Immobilie umfasst einen Innenlagerraum und einen zusätzlichen separaten Lagerraum im Erdgeschoss. Die Wohnung befindet sich im 2. Stock und das Gebäude hat keinen Aufzug. Parkmöglichkeiten sind in den bereitgestellten Informationen nicht angegeben.
Die Anschrift lautet Van den Boschstraat 3, 6045 GP Roermond, im Roermond-Zuid Gebiet. Die Nachbarschaft umfasst eine Grundschule und es gibt Busverbindungen zum Stadtzentrum. Die Beschreibung erwähnt lokale öffentliche Verkehrsmittel in Richtung Zentrum von Roermond. In den bereitgestellten Daten wurden keine Haustier- oder Rauchrichtlinien angegeben.
Überprüfen Sie die aktuelle Luftqualität in der Nähe der Immobilie, einschließlich Stickstoffdioxid (NO₂) und Ozon (O₃). Vergleichen Sie Stadtteile, verstehen Sie gesundheitliche Auswirkungen und wählen Sie einen sichereren Wohnort.
NO2
9.07µg/m 3
O3
40.87µg/m 3
PM10
16µg/m 3
PM2.5
10µg/m 3
Daten stammen von der nächstgelegenen Messstation. Direkt aus dem offiziellen niederländischen Luftqualitätsnetzwerk: Luchtmeetnet