
LUNTERO
Finde deinen Weg nach Hause mit über 20.000 Angeboten direkt zur Hand!


© 2025 Luntero. Alle Rechte vorbehalten.
LUNTERO
Finde deinen Weg nach Hause mit über 20.000 Angeboten direkt zur Hand!
© 2025 Luntero. Alle Rechte vorbehalten.
6418 AD (Heerlen - Caumerveld)
734 €/ Monat + 1,2 € Nebenkosten
Immobilienmakler
Wellernet
Sieh dieses Angebot auf
Diese Anzeige teilen
Prüfen Sie schnell, wie viele Supermärkte, Schulen, Haltestellen des ÖPNV, Cafés und weitere wichtige Einrichtungen sich in der Nähe dieses Mietobjekts befinden – perfekt, um Komfort, Fußläufigkeit und die Attraktivität der Umgebung zu bewerten.
Entdecken Sie die gefragtesten Stadtteile von Heerlen, ideal um Ihre nächste Mietwohnung in den Niederlanden zu finden. Erkunden Sie die Viertel und Bezirke, die Einheimische am meisten schätzen.
Preis
734,00 €
Nebenkosten
1,20 €
Verfügbar ab
1. November 2025
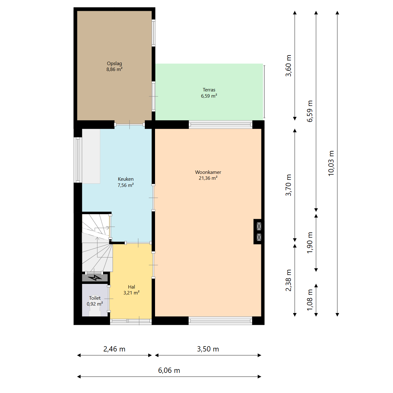
Objekttyp
Haus
Schlafzimmer
3
Heizungsart
Zentralheizung
Küchentyp
Offen
Garten
Abstellraum vorhanden
Finde alles Wichtige rund um dein zukünftiges Zuhause – Schulen, Geschäfte, Parks und öffentliche Verkehrsmittel. Diese interaktive Karte zeigt dir in Echtzeit, wie weit du zu Fuß, mit dem Fahrrad, Auto oder öffentlichen Verkehrsmitteln brauchst. Egal ob du zur Arbeit fährst, zur Uni gehst oder Freizeitangebote nutzt – plane deinen Alltag mit Klarheit und Vertrauen. Entdecke, wie gut dein neues Viertel angebunden ist.
Haus Heerlerbaan, Heerlen - Zur Miete
6418 CC (Heerlen)
1.375 €/ Monat
Vermietetes möbliertes Zimmer Heesbergstraat, Heerlen
Heerlen
340 €/ Monat
Studio Kerkraderweg 38, Heerlen - Zur Miete
6416 CK (Heerlen)
875 €/ Monat
Deckt die Miete zusätzliche Kosten wie Nebenkosten ab?
Die monatliche Miete deckt in der Regel nur die Immobilie selbst ab. Dienstleistungen wie Strom, Wasser, Gas und Internet werden oft separat berechnet. Überprüfe immer das Angebot oder kontaktiere den Anbieter, um zu bestätigen, was enthalten ist.
Welche Unterlagen benötige ich, um eine Immobilie zu mieten?
Für eine Bewerbung benötigst du in der Regel einen amtlichen Lichtbildausweis, einen aktuellen Einkommensnachweis (oder die finanziellen Daten eines Bürgen) und möglicherweise ein Arbeits- oder Studiendokument. Die genauen Anforderungen können in den Immobiliendetails angegeben sein.
Wie lange dauert es, bis ich eine Rückmeldung zu meiner Bewerbung erhalte?
Die Antwort auf Mietbewerbungen dauert in der Regel einige Tage bis zu einer Woche, abhängig vom Vermieter und der Nachfrage. Überprüfe regelmäßig deine E-Mails auf Updates oder zusätzliche Dokumentenanforderungen.
Ist es möglich, den Mietpreis oder die Bedingungen anzupassen?
In den meisten Fällen legen Vermieter feste Preise und Bedingungen fest, aber es schadet nie, nachzufragen! Über Details wie längere Mietverträge oder kleine Anpassungen zu sprechen, könnte je nach Vermieter eine Option sein.
Was soll ich tun, wenn ich vor Ablauf des Mietvertrags ausziehen muss?
Wenn du früher ausziehen musst, könnte von dir erwartet werden, einen Nachmieter zu finden oder eine Gebühr für die Vertragsauflösung zu zahlen. Überprüfe deinen Mietvertrag und sprich mit deinem Vermieter, um deine Optionen zu klären.
Überprüfen Sie die aktuelle Luftqualität in der Nähe der Immobilie, einschließlich Stickstoffdioxid (NO₂) und Ozon (O₃). Vergleichen Sie Stadtteile, verstehen Sie gesundheitliche Auswirkungen und wählen Sie einen sichereren Wohnort.
NO2
23.69µg/m 3
O3
21.47µg/m 3
PM10
22.35µg/m 3
PM2.5
10.16µg/m 3
Daten stammen von der nächstgelegenen Messstation. Direkt aus dem offiziellen niederländischen Luftqualitätsnetzwerk: Luchtmeetnet